Добротный и качественный кирпичный одноэтажный коттедж с цоколем, 2021 постройки. Облицован кирпичом ручной формовки. Стиль - английский кантри вне времени и очень уютный. Собственник, строили для себя под постоянным и строгим контролем, используя высококачественные материалы. Соблюдены все нормативы и технологические процессы.
1. Документы.
Один взрослый собственник, все оформлено, вся сумма в договоре, никаких обременений. Подходит под сельскую ипотеку.
2. Инфраструктура и локация.
До речного вокзала 15 км, сдается Восточный обход - быстрый выход на Академгородок и Гусинобродское шоссе. В радиусе до 1 км от дома - 4 магазина, в том числе 4 супермаркета, аптека, новая амбулатория, пункты выдачи маркетплейсов, остановка общественного транспорта 500 м. Улица с озеленением, освещением, камерами. Дом ближе к лесному массиву- тишина и отличная экология. Дом относится непосредственно к сельсовету - без дополнительных трат и выяснения отношений с управляющими компаниями
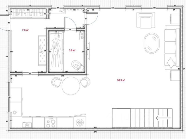
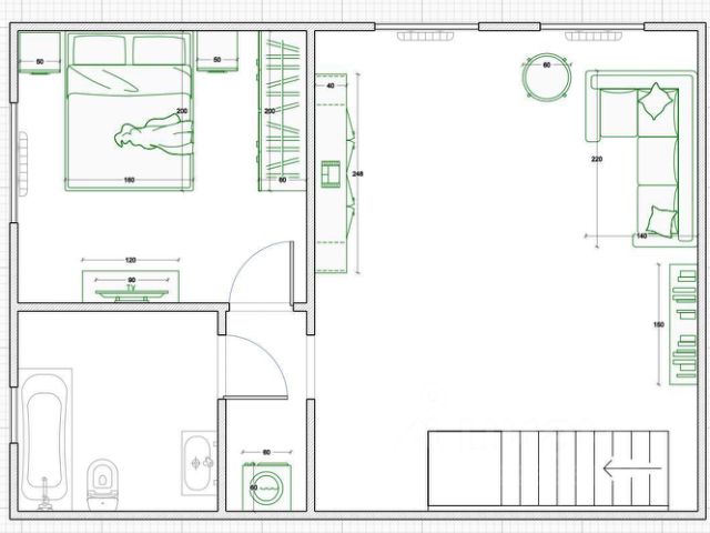
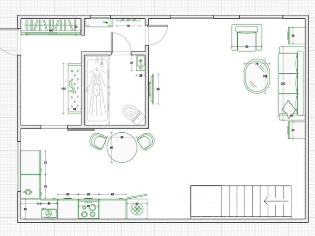
3. Конструктив и планировка.
Одноэтажный дом - несравнимое удобство и безопасность. Дом правильно расположен на участке и ориентирован по сторонам света. Зонирование на общественную и приватную часть (3 комнаты и санузел). Просторная кухня гостиная 46 кв м, сердце дома,имеет постоянную инсоляцию за счет 4 световых точек. Благодаря этому всегда светло и температура на пару градусов выше, чем в спальных комнатах, как и должно быть для благоприятного микроклимата сна. Кухонная зона с огромной рабочей поверхностью и отличным круглогодичным видом. Коридор, тамбур, санузел, цоколь также имеют естественное освещение. Цокольный этаж теплый, сухой, в нем располагаются котельная, постирочная, спортивный зал, мастерская, гардеробная для внесезонных вещей, кладовая. Все сделано для лёгкого и минимального обслуживания
4. Материалы
Фундамент армированная плита 20 см, блоки фбс 60 см с армопоясом, несколько степеней гидроизоляции, стены, перегородки - кирпич. Кровля металлочерепица. Газ, вода - скважина в цоколе, идёт подключение к центральной, септик 3 кольца.
Отделка Испанская плитка Equipe, текстиль Англия Clarke & Clarke, Италия, бумажные обои Англия ( Little Greene), США ( York ), высокий дюрополимерный плинтус, качественные двери
5. Ландшафтное благоустройство выполнено гармонично согласно общему дизайну. Огромное количество декоративных растений, шикарные гортензии, спиреи, хвойные и д.р. Изюминкой является большая коллекция взрослых парковых роз ведущих европейских питомников, преимущественно английского Девида Остина. Есть плодовый сад, вступивший в свою лучшую пору, ягоды, место для овощных культур. Выделена зона отдыха для взрослых и детей с разным типом тактильно приятных покрытий- речной песок, речная галька.
Для агентств без договоров, есть свой риелтор, комиссия только по факту сделки с Вашим покупаем. И помните, пожалуйста, про авторские права