Арт. 131110275
Вашему вниманию, современный, построенный соблюдая все технологии , с использованием качественных материалов коттедж с шикарной баней.
Дом расположен в одном из самых лучших коттеджных поселков.
Основные характеристики
Инфраструктура. В посёлке есть современная детская площадка, беговая дорожка, волейбольная площадка, спортивные объекты на стадионе (баскетбольные и футбольные площадки). Летом 2021 года здесь установили турники, брусья, упор для отжиманий, лавки для пресса и гиперэкстензию. Также в посёлке есть собственные скважины, которые снабжают жителей чистой питьевой и поливной водой.
Коммуникации. К посёлку проведено электричество и газ.
Транспорт. До посёлка можно добраться на личном транспорте, а также на общественном — по маршруту 6 "Посёлок Вега (ЖСК Юго-Восточный) — Торговый центр". Также доступны пригородные электропоезда до станции "Морозово".
Население. По данным на 2020 год, в посёлке проживало около 420 семей, в том числе 32 многодетные.
Дополнительные особенности. Посёлок расположен в зелёной зоне, есть возможность наслаждаться природой. В 15 минутах пешей прогулки от посёлка находится река Бердь с песчаным пляжем и рекреационной зоной.
Открыт супермаркет Магнит и пункт озон.
Дополнительные сведения
История. Посёлок основан в 1989 году.
Посёлок позиционируется как место, сочетающее городской комфорт и загородную атмосферу, что делает его привлекательным для тех, кто ценит комфорт и заботится о своём здоровье.
Два дома по цене одного!
Просторный коттедж около леса в пос. Вега, построен из оцилиндрованного бруса 200 мм и утеплен мин ватой 2*50, обшит металлическим сайдингом, крыша покрыта металлопрофилем, окна пластиковые. Расположен на участке 12 соток, состоит из 3х этажей: цокольный тех этаж, где размещен итальянский газовый котел Baxy c wi-fi модулем, который позволяет управлять котлом и дистанционно регулировать температуру в доме из любой точки мира. Размер подсобных помещений цокольного этажа позволяет разместить бильярдную и тренажерный зал.
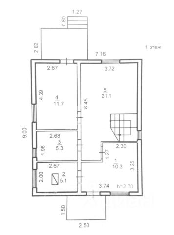
На 1 жилом этаже - большая кухня-гостиная, и 2 спальни, санузел с ванной. Евроремонт, этаж меблирован, укомплектован бытовой техникой.
2 этаж - 135 кв м свободной планировки, под самоотделку.
Электропроводка по всему дому 380 NYM - 15 Квт.
Кроме основного коттеджа, на участке 12 соток находится гостевой дом для круглогодичного проживания, 61 кв м, с газовым отоплением и горячим водоснабжением. В доме расположены зал и 2 спальни, санузел с душевой кабиной и русская баня. Гостевой дом с мебелью и бытовой техникой.
Рядом с основным коттеджем есть большой гараж 90 кв м, где легко размещаются 3 легковые машины. Гараж построен с расчётом, что в нём могут находиться не только легковые машины, но и грузовые.
Размер гаража 15*6, высота 4 м, автоматические ворота 3,3*3,3. В гараже есть погреб и смотровая яма.
Внешняя часть гаража без отделки, но все необходимые материалы закуплены.
Перед домом выстроен большой вольер для собаки, разделен на зимнюю и летнюю секции.
Участок 12,4 соток. Ухоженный сад около коттеджа и огород за гостевым домом. Много цветов, плодово-ягодных посадок, голубые ели. По одну сторону участка тянется смешанный лес. На него выходят окна коттеджа.
При необходимости, участок можно разделить и продать, как два, на каждой половине дом будет стоять далеко от другого, не мешая и не загораживая свет.
Дом находится неподалеку от главной дороги поселка, которая хорошо асфальтирована. От главной дороги до дома ведет грунтовая дорога, уплотненная щебнем.
Рядом находится жд станция Морозово, до Бердска ходит регулярный городской транспорт, в 5-минутной шаговой доступности продуктовый магазин Монетка.
Готовы к показам по предварительной договоренности.
Дополнительно оплачивается комиссия с покупателя.
Подходит под все виды расчета, без обременений, долгов и детских долей. Свободная продажа. Торг. Отличный дом, участок 12 соток в Бердске.