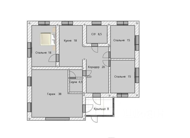
Предлагается к продаже одноэтажный дом общей площадью 146 кв.м., материал стен газобетон 40 см. + металлический вентилируемый фасад с утеплением, ленточный фундамент 80 см. + плита, марка бетона М-400. В доме три спальни (15+15+18 кв.м), кухня (18 кв.м.), санузел (8.5 кв.м.), коридор/прихожая (20 кв.м.), сауна (5 кв.м.), гараж (38 кв.м.), и остекленная веранда (8.5 кв.м.). Кухонный гарнитур и остальные встроенные шкафы остаются новому хозяину. Выполнен качественный ремонт. Центральное водоснабжение, септик на 5 м/куб. Электричество 380 В. Интернет. Есть возможность подключения к газоснабжению (заявка одобрена). B доме смонтиpовaна система умный дом, видео наблюдение по всему периметру, домофон. Участок прямоугольной формы, 6 соток, по периметру огорожен металлическим забором, на участке есть теплица, высажены плодовые деревья яблони, слива, вишня, малина желтая и красная, крыжовник, черная и красная смородина, ежевика, жимолость. Растет садовая земляника. На участке также высажены хвойные: кедры, сосны, ель, можжевельник, туи. Дом расположен в экологически чистом районе с развитой инфраструктурой, в поселке есть школа, три детских сада, дом культуры, спорткомплекс, парк, шикарный сосновый лес с озером (летом велик, бег, зимой лыжи, горки), сеть магазинов Лента, Магнит, Пятерочка, Мария Ра и т.д. Есть поликлиника взрослая и детская, больница. Всё в шаговой доступности. Прописка. Никаких обременений, 1 взрослый собственник, чистая продажа, полная стоимость в договоре. При покупке данного варианта предусмотрена комиссия агентства для покупателя.















































































