Первичная продажа



3 акции
С отделкой
дом сдан
Площадь Гарина-Михайловского
12 минут пешком
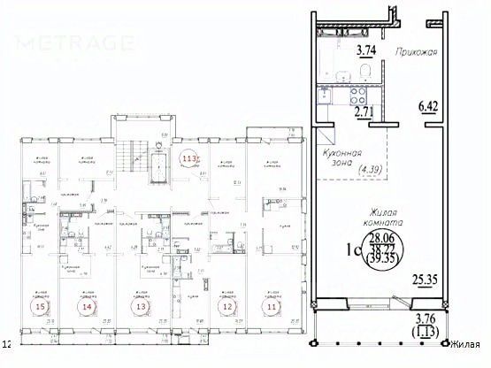
7 500 000 ₽
218 023 ₽/м²
Квартал открытий "Беринг", с любовью созданный компанией "Новый мир" состоит из четырех зданий переменной этажности и расположен на первой береговой линии реки Обь в старом центре Новосибирска - 10 минут пешком до метро Гарина-Михайловского.
Квартал спроектирован так, чтобы выгодно выделяться среди окружающего пейзажа Железнодорожного района Новосибирска. Современная архитектура комплекса выполнена в сочетании технологии вентилируемого фасада и облицовки клинкерным кирпичом.
Беринг - настоящее открытие для тех, кто хочет совместить близость к центру города с преимуществами жизни на правом берегу Оби.
В общественной зоне квартала организовано зеленое сердце квартала. Благоустроенная территория для отдыха и социальной активности жителей квартала и ближайших домов.
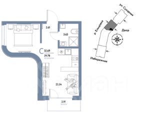
Виды на реку
Переменная высотность зданий обеспечивает вид на реку для максимального количества квартир: любуйтесь закатами прямо из своей квартиры.
Ниши под системы кондиционирования
Специальное помещение для кондиционеров с доступом с лоджии каждой квартиры сохранит первозданную эстетику фасада. Балконов нет, есть лоджии.
Без ступеней и пандусов
Доступ во входные группы расположен на уровне земли, чтобы создать удобство мамам с колясками и людям с ограниченными возможностями здоровья.
Многоуровневое благоустройство
Перепад рельефа открывает восхитительные виды на берег, прибрежную зелень и водную гладь.
Выход на береговую линию
С придомовой территории комплекса организован выход на берег реки Обь для ваших утренних пробежек и вечерних прогулок.
Архитектурная подсветка фасада
Подсветка фасада сделает жилой квартал еще одним украшением города, заметным со стороны реки, Димитровского моста и улицы Владимировской. Продам квартиру-студию в Новосибирске.















































































































































