


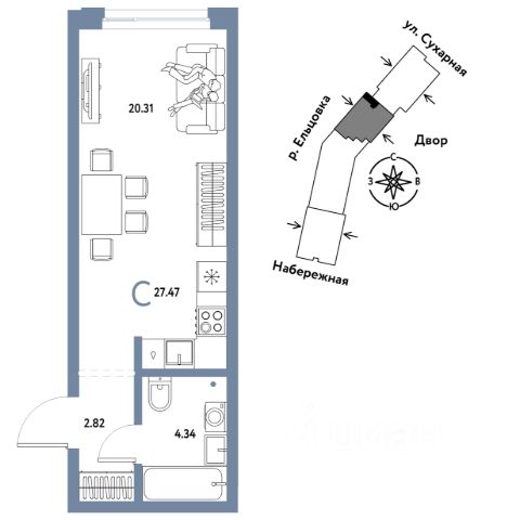
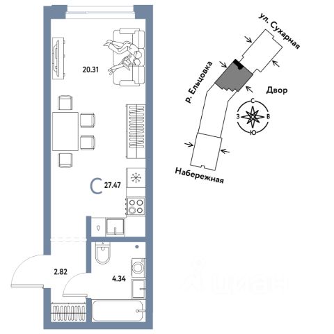
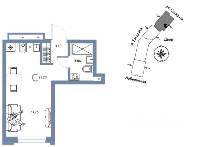
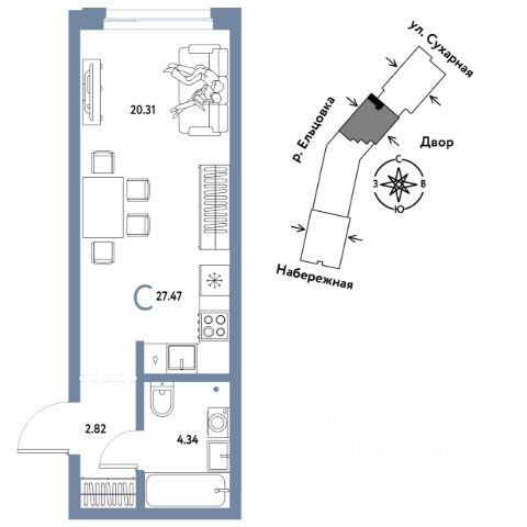
291 317 ₽/м²
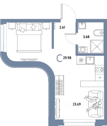
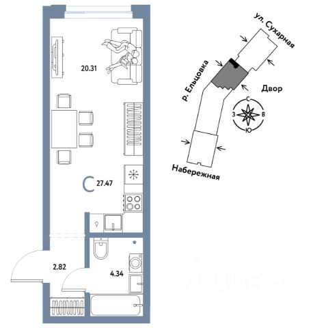
Новая квартира в ЖК "Страна.Береговая" напрямую от федерального застройщика "Страна Девелопмент". Продается 1комнатная квартира на 3 этаже от застройщика Страна Девелопмент. Площадь квартиры 25,2 кв. м. Жилой комплекс "Страна.Береговая" — новый флагманский проект федерального застройщика "Страна Девелопмент" в Новосибирске. Дом на берегу Оби с захватывающими видами из окон. Три секции разной этажности с акцентной башней-доминантой образуют камерное пространство с закрытым двором и личным зелёным садом для отдыха. ПРЕИМУЩЕСТВА Свой приватный двор, окружённый зеленью, которая будет цвести весь год. Двор с релакс-пространством, спортивной зоной с воркаут и настольным теннисом. Детская площадка из природных материалов. Двор круглосуточно находится под видеонаблюдением. Парадные с зелёным оазисом из растений. Для комфорта мы предусмотрели тёплые тамбуры, в зонах ожидания разместили мягкие диваны. Также мы добавили возможность бесключевого доступа — по распознаванию лица или считыванию BLE-ключа. Спроектирована подземная парковка на 217 машиномест. Ваш личный транспорт всегда будет под защитой и видеонаблюдением — переживать о его сохранности не придётся. Въезд в паркинг осуществляется с помощью умной камеры по госномеру либо BLE-метке. А чтобы подняться к квартире, не нужно выходить на улицу — лифты отвезут на нужный этаж. Для гостей за территорией двора предусмотрена открытая гостевая парковка. ОТДЕЛКА Квартиры сдаются с предчистовой отделкой: произведена разводка электричества и отопления, выполнена стяжка пола, стены выровнены "под маяк", установлены розетки, выключатели и радиаторы. ДИЗАЙНЕРСКАЯ ОТДЕЛКА При покупке квартиры в ЖК "Страна.Береговая" можно включить стоимость ремонта в ипотеку. Пять вариантов на выбор: хлопковая нить, серый шторм, белый камень, шалфей, голубой вереск. Включено всё — обои, ламинат, натяжной потолок и даже кондиционер. Также для вас есть четыре варианта ремонта в ванной — акриловая ванна с экраном, смеситель с лейкой, подвесной унитаз, зеркало с подсветкой. Останется только разместить мебель! СПОСОБЫ ПОКУПКИ Сотрудники "Страна Девелопмент" будут сопровождать вас на каждом этапе сделки, помогут получить одобрение по ипотеке или снизить ежемесячный платеж. - ипотека - рассрочка - с использованием материнского капитала - 100% оплата наличными









































































































































































