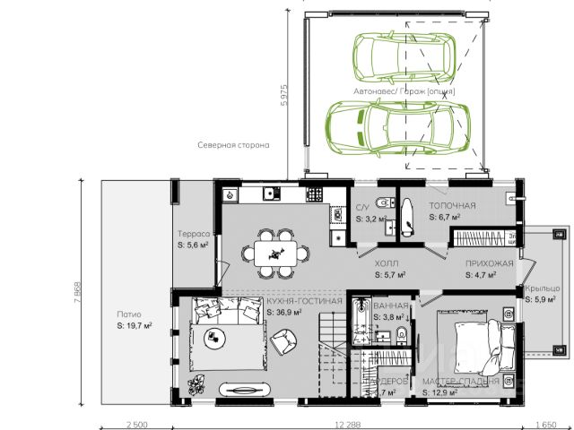
ДОМ ВАШЕЙ МЕЧТЫ УЖЕ ПОСТРОЕН И В ПРОДАЖЕ! Возможна покупка по сельской ипотеке! Отделка на самом высоком уровне, дом готов к проживанию. Коттедж 281 м2 в КП Рябиновый! Уникальное предложение дома в стиле Хай-тек - это стиль в архитектуре и дизайне, включающий элементы передовых технологий промышленности. Стильный, современный, монолитный дом с широкоформатными окнами и плоской кровлей. Терраса 45 м2 с садовой мебелью и видом на собственный лес. Соответствуя ультрасовременным тенденциям, высота потолков первого этажа в доме 4 м, цоколя - 2,6 м. Ещё один приятный плюс - это въездная группа, оснащенная системой тёплого пола и автоматическими подъемными воротами. Фундаментная плита - перевернутая чаша, двойное армирование, утепление, гидроизоляция. Фундаментная подготовка выполнена щебнем фракции 40/70, 20/40 и ПГС (послойно) - в данном случае фракция ПГС имеет большое значение. Цоколь выполнен из блоков ФБС 240/40/60 и связан армопоясом! Выполнена фундаментная гидроизоляция технониколь фундамент и гидроизоляция Геркулес Аква-Стоп. Цокольный этаж и стены дома утеплены пенополистиролом, стены дома утеплены в 100 мм и оштукатурены декоративной фасадной штукатуркой. Цокольный этаж и кровля перекрыты плитами и выполнена стяжка, установлена капитальная лестница. Стены первого этажа монолитные из пенобетона, толщина стены 400 мм. Общая толщина стены 550 мм. Выполнена отмостка с соблюдением всех технических условий (гидроизоляция рулонная, утепление, армирование). Кровля плоская , толщина утепления 500 мм, выполнена гидроизоляция технониколь премиум. Стоят кровельные дыхательные клапана, рулонная гидроизоляция с защитным слоем от радиации. В доме предусмотрена вентиляция и канализация, отопление системой теплых полов и радиаторы, встроенные в оконные проемы. Имеется водонагреватель (накопитель) 200 литров, газовый и электрокотел , а также бесперебойники с накопителем. В цокольном этаже гараж на 4 машины, бойлерная, прачечная, кладовая и свой спортивный зал. На первом жилом этаже просторный холл с зоной хранения, два санузла, гардероб, кухня-гостиная с выходом на террасу, 3 спальных комнаты. В доме выполнены чистовая отделка, новая мебель, новая бытовая техника. Напольное покрытие всего цокольного этажа - керамогранит, первого этажа - керамогранит и ламинат высокого качества Tarkett. Освещение цокольного, первого этажа и фасада в современным стиле. Дом продается под ключ со всей мебелью и техникой! Участок 7,52 сотки, на котором растут сосны, кедр и берёзы. Построена и радует хозяев новая баня! Выполнено ограждение всего участка. С фасадной части здания выполнена система отведения воды. В 10 минутах пешим ходом можно добраться до Мира Парка, где вы прекрасно проведёте свой летний отдых. Приятная атмосфера, бассейн с шезлонгами, развлечения для детей и взрослых с различными программами на каждый день. Начиная от мини фермы и заканчивая увеселительными шоу и фестивалями!!! Наш дом вам точно понравится! Приглашаем на просмотр! Купить дом с газом в Мошковском районе Новосибирской области.


















































































