
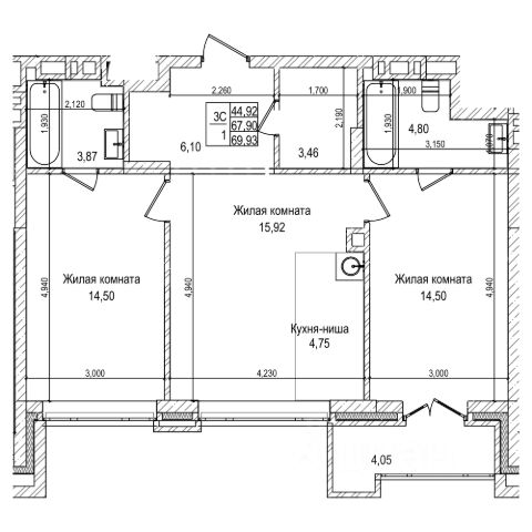
293 078 ₽/м²
Продаётся 3-комнатная квартира в сданном доме (Дом 1), срок сдачи: I-кв. 2025, общей площадью 67.9 кв.м., на 25 этаже. Новый жилой комплекс "На Горького" от застройщика ГК Сибирьинвест расположен в г. Новосибирск в границах улиц Максима Горького, Революции и пр. Виктора Ващука.










































































