156 968 ₽/м²
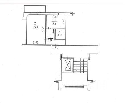
Продаются апартаменты-студия площадью 26,12 кв.Без обременения , без материнского капитала , один взрослый собственник на 4 этаже . В квартире выполнена качественная чистовая отделка , электрический кабель евростандарт , установлены доводчики света, розетки .Высокие потолки 3 метра создают ощущение пространства и свободы. Апартаменты находятся в современном доме с подземной парковкой и тремя лифтами — два пассажирских и один грузовой. Удобный пандус облегчает доступ для людей с ограниченными возможностями. Квартира без ремонта, что дает возможность воплотить все ваши дизайнерские идеи. Просторная жилая зона 12,05 кв. м и кухня площадью 3,1 кв. м позволяют комфортно обустроить пространство. Совмещенный санузел и лоджия с видом во двор добавляют дополнительное преимущество. Дом расположен в районе с развитой инфраструктурой. В пешей доступности находятся школы, детские сады и клиники. Для удобства ежедневных покупок рядом есть магазины. До станции метро "Речной вокзал" можно быстро добраться на автомобиле всего за 5 минут, что удобно для жителей, работающих в центре города. Продажа осуществляется по договору купли-продажи. Юридически чистая сделка — квартира без обременений. Отличный вариант для приобретения в ипотеку. Записывайтесь на просмотр, чтобы оценить все преимущества этих апартаментов и обсудить условия сделки. Не упустите возможность создать уютное пространство для жизни в комфортном районе!














































































