Выгодный обмен от застройщика услуга обмена вашей квартиры на новую с фиксацией цены на период обмена.
Звоните ответим на ваши вопросы и поможем рассчитать самый выгодный вариант покупки.
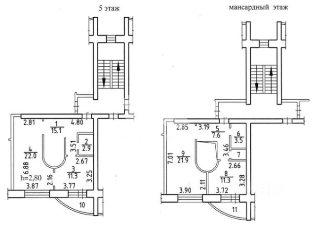
Продается 4-комн. квартира с предчистовой отделкой. Квартира расположена на 1 этаже 18 этажного монолитно-кирпичного дома в миниполисе на Фадеева "Фора" от группы компаний "Поляков".
Квартиру также можно приобрести с готовым ремонтом "под ключ".
Миниполис "Фора" кардинально меняет представление о качестве жизни на улице Фадеева в северной части Новосибирска. Комплекс располагается в Калининском районе между улицами Мясниковой и Игарской. К услугам новосёлов разнообразная современная инфраструктура микрорайона Родники — социальные и коммерческие объекты.
Запоминающаяся, респектабельная, яркая, разнообразная архитектура "Форы" преображает представление об исторической локации, в то же время основываясь на корнях традиций. Когда-то здесь были сады, и дома "Форы" напоминают деревья. Как уникально каждое дерево, так и дома отличаются цветом, фактурой, формой, остеклением.
Для жителей предусмотрена удобная внутренняя инфраструктура — колясочные, лапомойки, соседский центр. В стилобате вдоль Фадеева разместятся магазины, салоны услуг, полезные коммерческие службы. В двух домах предусмотрены панорамные лифты. В "Форе" запроектированы уникальные двухуровневые квартиры с отдельным входом, удобные не только для жизни, но и для бизнеса. А также видовые хайфлэты на верхних этажах. В "Форе" представлен потрясающий выбор квартир. Здесь 58 планировок студий и квартир площадью от 26,92 до 170,93 кв.м, а также кладовые. Высота потолков в квартирах от 2,85 м до 5,25 м.
Срок ввода первой очереди - III квартал 2026 года. Первая очередь включает три 18-этажных дома со стилобатом вдоль улицы Фадеева. Во второй очереди миниполиса запланирован подземный паркинг.
На территории миниполиса будет построен детский сад на 180 мест — самый современный в локации Родников. Рядом - школы 211, 219, 218, 207, детский сад 85, детский сад комбинированного вида 77, поликлиника 29, в шаговой доступности или одной остановке общественного транспорта клиника "ПроМедика". Спорт и активный досуг Рядом - сквер Влюбленных, ледовая арена "Родник", бассейн "Афалина", озеро "Спартак" в 7-10 минутах на велосипеде, чуть дальше озеро "Жемчужина Сибири", в 5 минутах на автомобиле "Сосновый Бор" и "Термы Мира", 7 км до Новосибирского зоопарка. Шопинг и рестораны Рядом - гипермаркет "Лента" в 3 минутах пешком, до ТЦ "Атлас" 5 минут ходьбы, чуть дальше ТВЦ "Каскад", ТРК "Голден Парк", ТЦ "Кристалл", в 5 минутах на авто ТВК "Большая Медведица", рядом с ним гипермаркет "METRO", в шаговой доступности пиццерия "Папа Джонс", до ТРЦ "Ройял парк" 20 минут на транспорте.
В "Форе" внедряются передовые технологии для обеспечения комфорта и безопасности. Взаимодействие со Службой комфорта через мобильное приложение. Интеллектуальная система доступа в жилые части комплекса, паркинг и кладовые. Автоматические двери, быстры Купить квартиру элитные в районе Калининский в городе Новосибирск.