9 486 ₽/м²
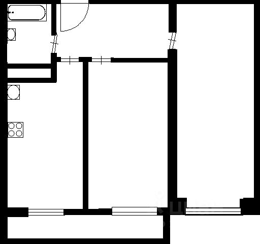
есть небольшой торг !!!Продается уютная трехкомнатная квартира в живописном селе Верх-Коен,(земля не отрегистрирована ,по этому в Росреестре квартира на земле ,приватизация участка не составит вам особого труда ,можно это сделать как сразу после покупки ,так и позже )расположенном в Искитимском районе Новосибирской области. Общая площадь квартиры составляет 50,6 кв. м, из которых 35,8 кв. м приходится на жилую зону. Просторная кухня размером 11,4 кв. м станет отличным местом для семейных обедов. Квартира находится на первом этаже одноэтажного дома, что особенно удобно для семей с маленькими детьми и пожилыми людьми. Квартира без ремонта, что дает вам возможность воплотить все свои дизайнерские идеи и создать интерьер вашей мечты. Окна выходят как на улицу, так и во двор, поэтому в квартире всегда будет светло и уютно. Планировка позволяет рационально использовать пространство и создать комфортные условия для жизни. Дом расположен в тихом и спокойном районе с развитой инфраструктурой. В пешей доступности находятся школы и детские сады, что станет отличным решением для семей с детьми. Также рядом есть больница, магазины, поэтому все необходимое всегда под рукой. Хорошее транспортное сообщение позволяет быстро добраться до центра района и других частей города Искитим. Квартира продается без посредников, что упрощает процесс покупки. Все документы готовы к сделке, обременений нет. Это отличная возможность стать владельцем собственного жилья на выгодных условиях. Приглашаем вас на просмотр! Звоните и записывайтесь, чтобы увидеть квартиру вживую и оценить все ее преимущества. Мы готовы ответить на все ваши вопросы и помочь вам с оформлением сделки.PS.сени деревянные,в доме есть ещё одна комната которая использовалась как подсобное помещение.фото нет(она без ремонта вообще)в доме 2 года никто не проживает,по этому есть некоторые нюансы,типо потрескалась штукатурка,но это на состояние не влияет,огород пригоден для посадок.есть черёмуха,малина и кусты смородины.звоните на все вопросы отвечу!!!! Квартира (вторичка) от собственника в Искитимском районе Новосибирской области.









































































