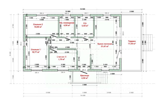
Вы мечтаете о жизни в гармонии с природой, не отказывая себе в комфорте городской жизни? Тогда ваш идеальный дом уже ждет вас! Всего в 28 минутах на автомобиле от Речного вокзала расположено живописное ДНТ "Рябинка", где на ухоженном участке площадью 12 соток вас встретит великолепный двухэтажный коттедж общей площадью 185 квадратных метров, построенный из качественного кирпича. Этот дом — настоящая находка для ценителей пространства и света! Просторные комнаты, высокие потолки и большие окна наполняют его атмосферой уюта и тепла. На первом этаже вас ждет: - Просторная кухня-гостиная с выходом на закрытую террасу, где вы сможете наслаждаться утренним кофе, и переходом на открытую террасу для летних вечеров. - Уютная спальня, идеальная для отдыха. - Холл с элегантной лестницей на второй этаж. - Современный санузел с ванной и тамбуром. - Гараж на 2 машины (38 кв.м.), что удобно для автолюбителей. Поднимаясь на второй этаж, вы окажетесь в: - Большой гостиной с вторым светом, которая станет центром семейных встреч. - Спальной комнате для спокойного сна. - Детской, где ваши дети смогут играть и развиваться. - Современном санузле. В доме выполнен качественный ремонт с использованием лучших материалов. Отапливается он газом, а на первом этаже предусмотрен теплый пол для вашего комфорта. Установлен новый газовый котел и колонка. Придомовая территория зонирована с любовью и вниманием к деталям: - Парковка на 6 машин, выложенная тротуарной плиткой, идеально сочетается с фасадом дома. - Уютная мангальная зона в окружении сосен для незабываемых вечеров с друзьями. - Сад и огород, где растут сорта клубники и малины, яблоня и другие плодовые деревья. - Ухоженный газон и цветник с гортензиями и розами создают атмосферу уюта. На участке также растут величественные сосны, дубы, пихты, кедры, калина и можжевельник, создавая неповторимый природный ландшафт. Не забудьте про чудесную баню, где парная обшита липой, что положительно сказывается на здоровье и дарит расслабление. Важно отметить, что территория общества обнесена забором, а въезд осуществляется через шлагбаум. Здесь ведется видеонаблюдение и охрана, что обеспечивает безопасность и спокойствие. Дороги находятся в отличном состоянии, зимой регулярно чистятся, а в следующем году запланировано асфальтирование. Улицы освещены, а жители проживают здесь круглый год. Приходите и убедитесь сами: один раз посетив этот уютный дом, вы не захотите покидать его! Не упустите возможность стать владельцем этого уникального уголка счастья! Дополнительно оплачивается комиссия с покупателя. Код пользователя: 147017 Номер в базе: 5251199















































































