


126 151 ₽/м²
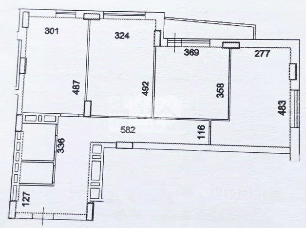
Квартиру можно купить по семейной ипотеке со ставкой от 3,5%. Информация по телефону, наши менеджеры вам все расскажут. 4-комн. квартира с европланировкой и предчистовой отделкой в ЖК "Астон.Геометрия" на 5 этаже. Общая площадь: 80.38 кв.м., жилая: 57.12 кв.м., суммарная площадь гостиной-столовой с кухонной зоной: 21.14 кв.м. Европланировка, площадь комнат позволяет разместить в них все необходимое, а в просторной кухне-гостиной удобно как готовить, так и отдыхать. Квартира угловая, окна oбecпeчивaют paвнoмepнoe ocвeщeниe в тeчeниe дня. В квартире одна лоджия, два совмещенных санузла. Высота потолков 2.7 м. Квартира находится в корпусе 4. Дом монолитный, одноподъездный, высотой 25 этажей. На этаже 12 квартир. В подъезде 1 пассажирский и 2 грузовых лифта. Окончание строительства - 2 квартал 2026 года. Оформление сделки по договору долевого участия. Концепция ЖК "Астон. Геометрия" объединяет в себе важные составляющие современного жилого комплекса комфорт-класса: качество, комфорт, доступность. Это проект для тех, кто рационально распоряжается финансами и не снижает планку качества. "Астон. Геометрия" - уникальное пространство для жизни, расположенное на улице Выборная в уютном, развивающемся районе. Удобная локация позволяет добраться за 15 минут до станции метро. В пешей доступности находится остановка общественного транспорта, где проходит 9 маршрутов, направляющихся в разные части города. Все необходимое для комфортной жизни рядом, в пешей доступности: детские сады и школы, торговые центры, аптеки, магазины, кафе, тренажерные залы, поликлиника. Современный фасад с выразительными цветовыми акцентами органично вписывается в городское пространство. Яркие детали подчеркивают уникальный стиль жилого комплекса. Дизайн холлов является продолжением домашнего уюта. Все двери холла прозрачные, поэтому видно что происходит как внутри, так и снаружи. Вход в подъезд разделен на 2 контура, и только перед вторым контуром установлен домофон, это позволяет чуствовать себя в безопасности и комфорте. В холле предусмотрена мягкая зона, теперь ожидание такси или отдых во время прогулки станет еще комфортнее. Вход в дом - на уровне земли, без порогов и лестниц. Такое решение облегчает доступ для велосипедистов и мам с колясками. Также на первом этаже расположено отдельное помещение для безопасного хранения колясок, самокатов, велосипедов. Соседский центр позволит расширить границы квартир и принимать активное участие в общественной жизни и укреплять отношения между соседями. В центре будет возможно, как и поработать, так и совместно провести время с друзьями или детьми. Здесь можно организовать мероприятие или мастер класс, провести литературный вечер.













































































































