


164 500 ₽/м²
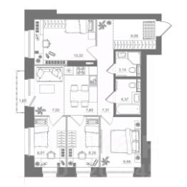
Продаётся 4-комнатная квартира в строящемся доме (Дом 1), срок сдачи: I-кв. 2026, общей площадью 58.99 кв.м., на 6 этаже. Новая жизнь в удобной локации Дзержинского района! Промышленная, 7 новый дом вблизи Березовой рощи! ИНФРАСТРУКТУРА Помимо станции метро и зелёного парка для прогулок, здесь можно найти большое разнообразие инфраструктуры: от семейных ресторанов до ТРЦ "Сибирский молл". ВНЕШНИЙ ВИД Этажность дома и стиль фасада выделяют здание среди окружающей застройки. Кирпич разных оттенков, ночная подсветка, правильная геометрическая форма - архитектуру можно рассматривать и любоваться каждой деталью. ДВОР И ПРОСТРАНСТВА ОБЩЕГО ПОЛЬЗОВАНИЯ Закрытый, безопасный двор с функциональной детской площадкой и местами для отдыха и прогулок взрослых. Ландшафтное озеленение - всё для досуга на свежем воздухе. Входные группы светлые и стильные. Интерьер холлов соответствует текущим трендам дизайна, а безопасность обеспечивает круглосуточное видеонаблюдение. БОЛЬШОЙ ВЫБОР КВАРТИР Планировки радуют своими нестандартными решениями: лоджии с витражным остеклением и классической кирпичной кладкой, несколько санузлов, эркерные окна, низкие подоконники, потолки от 2.7 метров. Пространство максимально оптимизировано: минимум коридоров, максимум света.
































































































































































