


113 808 ₽/м²
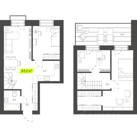
Квартира с РЕМОНТОМ в комплексе FREEDOM VILLAGE. Проект в альпийском стиле из кирпича: 78 домов высотой от 4 до 5 этажей. На этаже до 7 лотов. На территории комплекса оборудованы детские игровые площадки из дерева для разных возрастов, баскетбольная площадка, workout-зона, места для занятий спортом, дорожки для бега и зоны для отдыха. Готовая инфраструктура: - Школы и детские сады, в том числе центр образования 82 "Развитие"; - Поликлиники; - Аптеки; - Салоны красоты; - Супермаркеты; - Кафе. Проект находится в Северном направлении: самом экологичном месте без вредных производств. До поселка ведет широкополосная, безопасная Федеральная трасса. От площади Калинина — 30 минут. Продается 4-комнатная квартира в Мошковском районе Новосибирской области.



















































































