


194 543 ₽/м²
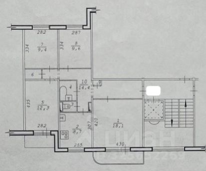
Просторная 4-комн. квартира с предчистовой отделкой в ЖК "Город-на-озере" на 5 этаже. Общая площадь: 144.39 кв.м. Высота потолков 3.0 м. Дом монолитный, многоподъездный, переменной этажности, от 9 до 24 этажей. Квартира находится в 1-й секции высотой 14 этажей в корпусе 1. На этаже 8 квартир. В подъезде 1 пассажирский и 1 грузовой лифт. Окончание строительства - 4 квартал 2028 года. Оформление сделки по договору долевого участия. Квартира с кухней-гостиной и четырьмя спальнями в проекте Город-на-озере. Особенности планировки: гардеробная, мастер-спальня, предчистовая отделка, рабочий кабинет, разнесённые спальни. квартиры в нашей базе: ГРД01-Ж1.5.5. Город-на-озере находится в Центральном районе Новосибирска, на пересечении Ипподромской магистрали и улицы Фрунзе. По этим крупным транспортным артериям легко добраться в любое место города и на автомобиле, и на общественном транспорте. До ближайших автобусных остановок — 5 минут пешком, а до станции метро "Березовая Роща" — 10 минут. В радиусе 1,5 км вокруг квартала уже сформирована необходимая инфраструктура. Здесь есть детские сады, школы, больницы, аптеки, спортивные клубы, торговые центры с супермаркетами, ресторанами и кинотеатрами. Для большего комфорта жителей Город-на-озере обеспечат собственной инфраструктурой. В квартале будет свой торговый центр с магазинами и полезными сервисами. Город взял на себя обязательство создать рядом образовательный кластер — два детских сада и две школы. Особенность квартала — озеро Верховое. Жители района смогут прогуляться по набережной, вокруг водоёма, где будет круговой пешеходный маршрут, с разными зонами отдыха. Кроме того, в пешей доступности от Города-на-озере находятся еще два городских парка: "Центральный" и "Березовая роща". Город-на-озере — проект комплексного развития территории (КРТ) по принципу многофункциональной застройки, или mixed-use. Это когда на одной территории сочетаются жилая, коммерческая, социальная и рекреационная инфраструктура. К 2032 году здесь появятся разноэтажные жилые дома с приватными дворами, образовательный кластер, деловой центр, торговая улица и общественные пространства, открытые для всех горожан. Люди смогут жить и работать в Городе-на-озере, а в обеденный перерыв совершать променад вокруг озера. Локация квартала уникальна: с одной стороны он соседствует с активным уличным фронтом, а с другой — с тихим и спокойным озером с обильным озеленением. При этом участок неровный, перепад высот достигает 30 метров — это высота восьмиэтажного дома. Для разработки проекта мы пригласили лучшие архитектурные бюро из Китая: AEDAS и Turenscape. AEDAS специализируются на создании качественных общественных пространств, а Turenscape — на работах с экосистемой водных объектов. Архитекторы учли особенности местности и объединили урбанистический и природный ландшафты.











































































































