


183 524 ₽/м²
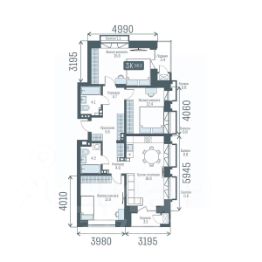
Продается 3-комн. квартира от застройщика с предчистовой отделкой в Квартал "Авиатор" на 15 этаже. Общая площадь: 90.07 кв.м., жилая: 36.4 кв.м., площадь просторной кухни-гостиной: 23.8 кв.м. Комнаты изолированные, все окна выходят на одну сторону. В квартире три балкона, два совмещенных и один раздельный санузел. Высота потолков 2.82 м. Дом монолитный, черырехподъездный, переменной этажности, от 9 до 15 этажей. Квартира находится в 3-й секции высотой 15 этажей в корпусе Дом 3. На этаже 7 квартир. В подъезде 1 пассажирский и 1 грузовой лифт. Окончание строительства - 1 квартал 2026 года. Оформление сделки по договору долевого участия. Квартира с кухней-гостиной и тремя спальнями в квартале Авиатор. Особенности планировки: второй санузел, лоджия, мастер-спальня, разнесённые спальни, свободная планировка. квартиры в нашей базе: АВТ03-Ж3.15.5. Квартал "Авиатор" расположен на пересечении улицы Аэропорт и Мочищенского шоссе, рядом с остановками "Байкальская", "Жуковского" и "Городской аэропорт", в 7 минутах ходьбы от сквера им. Чаплыгина и 10 минутах от крупной транспортной магистрали — Красного проспекта. До станции метро "Заельцовская" и площади "Калинина" — около 10 минут на автомобиле. Квартал связан выездами с Мочищенским шоссе, улицами Жуковского, Аэропорт и Георгия Колонды. Сформированная инфраструктура локации — школы, детские сады, магазины, спортивный стадион — делают жизнь в квартале комфортной. Квартал состоит из восьми домов. Вдоль улицы Аэропорт расположено 6-18-этажное здание с видовыми квартирами. Оно защищает внутреннее пространство от шума и пыли. В центре — четыре 7-9-этажные урбан-виллы. Для них характерны увеличенная площадь квартир, повышенная приватность и малое соседство (30 — 40 квартир). Завершают комплекс два полузакрытых блока высотой 8-16 этажей с фасадами фисташкового цвета и подземной парковкой. Благодаря переменной высотности застройка приобретает человеческий масштаб, во дворы проникает больше света, а число квартир, из которых открывается красивый вид, значительно увеличивается. Первые этажи вдоль Мочищенского шоссе и улицы Аэропорт мы отдали под полезные сервисы и магазины. Активный фронт позволил интегрировать квартал в городской контекст. На территории "Авиатора" расположен многофункциональный спортивный комплекс с открытым амфитеатром, который станет центром притяжения всего района. Если Вы - риелтор, пожалуйста, за более подробной информацией обратитесь на горячую линию на нашем официальном сайте. 3-комнатная квартира, примерная площадь 90 м2 в Новосибирске.





















































































































