Первичная продажа
дом сдан
Площадь Маркса
9 минут на транспорте
4 900 000 ₽
132 432 ₽/м²
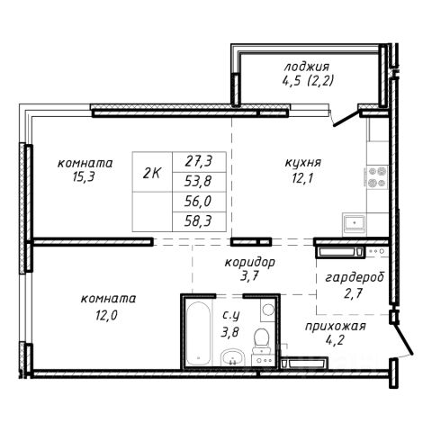
Продаётся 2-комнатная квартира в сданном доме (Связистов, 162/1 (Корпус 2)), срок сдачи: I-кв. 2024, общей площадью 37 кв.м., на 16 этаже. ЖК "Азимут" - 4 панельных корпуса на улице Связистов с повышенной шумоизоляцией и свободными планировками.
















































































