Мы используем куки-файлы. Соглашение об использовании
Общая площадь88,8 м²
Участок5 сот.
Этажей в доме1
Год постройки2025
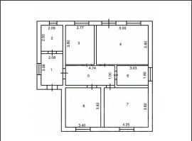
Продаётся современный дом 90 м² на ровном участке 5 соток п. Садовый, центральный микрорайон. Подходит под семейную ипотеку 6% Помощь в одобрении ипотеки. Предлагаем уютный и тёплый дом, построенный с учётом комфорта и надёжности — отличный вариант для жизни и выгодного вложения. Характеристики дома: Стены: сибит 300 + утеплитель (пеноплекс 50) + кирпич Фундамент: монолит + буроям Крыша: металлочерепица Канализация: септик Подведены газ и электричество (все монтажные работы выполнены и оплачены) Установлены газовый и электрический котлы Радиаторы отопления + тёплый пол Большие 5-камерные окна с кашировкой и шпросами Предчистовая отделка — возможность сделать интерьер под себя Планировка: Просторная кухня-гостиная с французскими окнами, наполняющими дом светом и уютом, 3 комнаты, санузел, котельная. Дом расположен на ровном участке, в развитом районе с удобной инфраструктурой — идеальное место для комфортной жизни. Звоните, с радостью отвечу на вопросы и организую показ! Дополнительно оплачивается комиссия с покупателя. Код пользователя: 148036 Номер в базе: 10641183
Позвоните автору
Вам ответят на все вопросы

О доме

Площадь

88,8 м²

Количество этажей

1

Количество спален

3

Год постройки

2025

Об участке

Площадь

5 сот.

Категория земель

Земли населённых пунктов

Статус участка

Индивидуальное жилищное строительство

Коммуникации и удобства

Канализация

Септик

Водоснабжение

Центральное

Электричество

Есть

Газ

Магистральный в доме или на участке

Спросите умного помощника
Получите экспертное мнение о жилье

Расположение

Подпишитесь на объявления в этой локации
Мы сообщим, как только поблизости появится что‑нибудь новенькое

Рекомендуем коттеджные посёлки

Охрана, зоны отдыха и удобная инфраструктура
Ипотечный калькулятор
  • Базовая
  • Семейная
  • ИТ-ипотека
  • 20%
  • 30%
  • 40%
  • 50%
лет
  • 10 лет
  • 20 лет
  • 30 лет
Загружаем предложения от застройщика и банков
Хотите продать недвижимость?Разместите объявление на ЦианРазместить
8 300 000 ₽
Цена за метр
93 468 ₽/м²
Агентство недвижимости
На Циан
1 год
Объектов в работе
более 3000