Мы используем куки-файлы. Соглашение об использовании
Общая площадь240 м²
Участок6 сот.
Материал домаКирпичный
Этажей в доме2
Год постройки2025
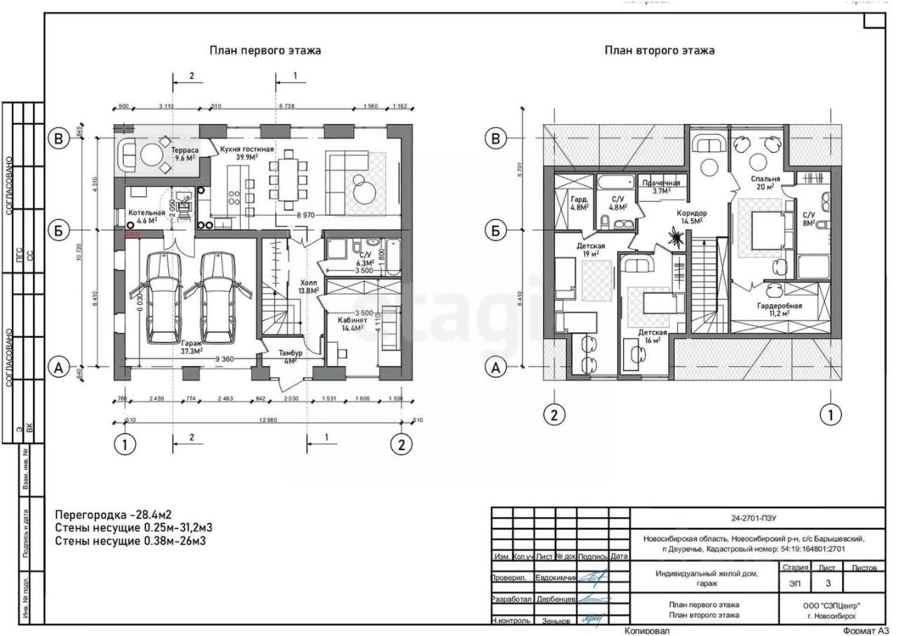
Рассмотрим обмен на квартиру! Пpедлагaeтcя к пpoдaже 2х-этажный Коттедж 240 м2 с гаражом на 2 автомобиля в KП "Cветлое". Удобная и продуманная планировка, на первом этаже находятся кабинет 14.4 м2, кухня-гостиная 39,9 м2, котельная и санузел, на втором этаже 2 детских спальни и 1 мастер-спальня, санузел и прачечная. Земельный участок 6 соток, категория: земли населенных пунктов под ИЖС. Ровный, чистый, без растительности идеально подходит для ландшафтного дизайна и воплощения ваших идей. Коттедж построен, вам осталось только завершить отделку по своему вкусу и создать дом, отвечающий вашим индивидуальным потребностям." Дом построен из качественного кирпича, что обеспечивает надежность, долговечность и отличную теплоизоляцию." К участку подведено электричество, газ находится в непосредственной близости, что значительно упрощает подключение. Собственная скважина 35 метров с чистой водой, соответствующей всем нормам. В перспективе подключение к центральному водоснабжению - это дополнительный комфорт и удобство для вас." КП "Светлое" это активно развивающийся коттеджный поселок с охраняемой территорией (шлагбаум и пост охраны на въезде), что гарантирует вашу безопасность и спокойствие." Важное преимущество завершение строительства Восточного Объезда, что значительно улучшит транспортную доступность и сократит время в пути до города. Остановка общественного транспорта находится в 15 минутах ходьбы, что обеспечивает удобное сообщение с городом." Приобретение возможно как за наличный расчет, так и в ипотеку! Воспользуйтесь выгодными условиями: СЕЛЬСКАЯ ипотека от 3%, СЕМЕЙНАЯ ипотека от 6%. Также возможна покупка в РАССРОЧКУ на выгодных условиях и рассмотрим ОБМЕН на квартиру. Не упустите свой шанс жить в комфортном и современном коттедже в живописном месте! Приглашаем вас на просмотр! Звоните прямо сейчас, чтобы узнать подробности и записаться на просмотр." Дополнительно оплачивается комиссия с покупателя. Код пользователя: 179479 Номер в базе: 5293518
Позвоните автору
Вам ответят на все вопросы

О доме

Площадь

240 м²

Материал дома

Кирпичный

Количество этажей

2

Количество спален

4

Год постройки

2025

Об участке

Площадь

6 сот.

Категория земель

Земли населённых пунктов

Статус участка

Индивидуальное жилищное строительство

Коммуникации и удобства

Канализация

Септик

Водоснабжение

Скважина

Отопление

Нет

Электричество

Есть

Газ

Магистральный по границе

Дополнительно

Гараж

Спросите умного помощника
Получите экспертное мнение о жилье

Расположение

Подпишитесь на объявления в этой локации
Мы сообщим, как только поблизости появится что‑нибудь новенькое

Рекомендуем коттеджные посёлки

Охрана, зоны отдыха и удобная инфраструктура
Ипотечный калькулятор
  • Базовая
  • Семейная
  • ИТ-ипотека
  • 20%
  • 30%
  • 40%
  • 50%
лет
  • 10 лет
  • 20 лет
  • 30 лет
Загружаем предложения от застройщика и банков
Хотите продать недвижимость?Разместите объявление на ЦианРазместить
17 000 000 ₽
Цена за метр
70 833 ₽/м²
Агентство недвижимости
Документы проверены
На Циан
1 год
Объектов в работе
более 3000