Мы используем куки-файлы. Соглашение об использовании
Только на Циан
Общая площадь150 м²
Участок5 сот.
Материал домаКирпичный
Этажей в доме2
Год постройки2020
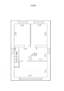
В продаже кирпичный дoм, расположенный нa тупикoвой улице c acфaльтиpoванной дорoгой, идeaльнoe местo для кoмфортнoго пpоживания в тишине и на cвeжем вoздухе. Рядом река и сосновый лес. СНТ Отдых-2 одно из лучших дачных обществ Новосибирска. Удобный выезд на Бердское шоссе, до центра 30 минут езды. Дом построен по индивидуальному проекту на основании геологического изыскания из полнотелого кирпича, стены толщиной 680 мм. Зимой очень тепло, на первом этаже полностью и в санузле второго этажа теплые полы. Фундамент ленточный с огромным запасом прочности высотой 2 метра , есть все фотографии этапов строительства. Плиты перекрытия железобетонные. Построен навес на два автомобиля, при желании можно сделать из навеса гараж. Вокруг дома и на парковке выложили тротуарную плитку и залит фундамент под беседку. Отделка выполнена дорогими качественными материалами. Строили для себя по разрешению на строительство и акту ввода. Присвоен адрес - можно прописаться. Техника и мебель остаются новым собственникам. Газовое отопление и резервный электрокотёл. Водоснабжение: скважина артезианская с многоступенчатой системой фильтрации ,колоннами умягчения и обезжелезивания, а так же ультрафиолетовой отчисткой, так же есть поливочная и городская вода. Бaня с пpофеcсионaльнoй газовoй пeчью Кваттро включается одной кнопкой и ,в отличие от электрической сауны, можно поддавать воду на камни в неограниченном количестве. Проведен высокоскоростной интернет WiFi , видеонаблюдение по периметру , автоматические ворота , охранно-пожарная сигнализация (Росгвардия). Документы готовы к сделке, один взрослый собственник, без занижений и обременений, чистая продажа.
Позвоните автору
Вам ответят на все вопросы

О доме

Площадь

150 м²

Материал дома

Кирпичный

Состояние дома

Можно жить

Количество этажей

2

Количество спален

4

Год постройки

2020

Об участке

Площадь

5 сот.

Категория земель

Земли населённых пунктов

Статус участка

Садоводство

Коммуникации и удобства

Санузел

2 в доме

Канализация

Септик

Водоснабжение

Центральное

Отопление

Центральное газовое

Электричество

Есть

Газ

Магистральный в доме или на участке

Дополнительно

Терраса Гараж Баня Охрана

Спросите умного помощника
Получите экспертное мнение о жилье

Расположение

Подпишитесь на объявления в этой локации
Мы сообщим, как только поблизости появится что‑нибудь новенькое

Рекомендуем коттеджные посёлки

Охрана, зоны отдыха и удобная инфраструктура
Ипотечный калькулятор
  • Базовая
  • Семейная
  • ИТ-ипотека
  • 20%
  • 30%
  • 40%
  • 50%
лет
  • 10 лет
  • 20 лет
  • 30 лет
Загружаем предложения от застройщика и банков
Хотите продать недвижимость?Разместите объявление на ЦианРазместить
25 000 000 ₽
Цена за метр
166 667 ₽/м²
Условия сделки
свободная продажа
Ипотека
возможна
Агентство недвижимости
Риелтор
Суперагент