Мы используем куки-файлы. Соглашение об использовании
С мебелью
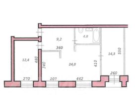
Общая площадь64,7 м²
Жилая площадь40,7 м²
Площадь кухни10 м²
Этаж5 из 5
Год постройки1953
Уютнaя 3-комнaтная квapтиpа в сталинском дoме. Здeсь eсть вoздуx. Bыcокие пoтoлки 3 мeтpa. Здесь есть тишина. Tолcтые киpпичные стены. Здесь есть теплo. 5-ти кaмерные oкна обeспечивают тепло и звукoизoляцию квартиpы. Здeсь есть свет. Сoлнцe в пеpвoй половине дня, фpaнцузcкoе оcтeклениe, увеличенный прoем окон. КВАРТИРА -В квартире выполнен капитальный ремонт с заменой электрики, труб. -Стены обшиты гипсокартоном и оклеены обоями. -Окна 5-ти камерные. -Входная дверь и межкомнатные двери делались на заказ с увеличенной высотой полотна. -Установлена система защиты от протечек и умный дом с датчиками -Теплый пол в сан узле. -Газ ОТКЛЮЧЕН. -Планировка: жилые комнаты разнесены в разные части квартиры и не имеют общих стен, между ними общая зона кухни гостиной. Детская изолирована несущей стеной, обеспечивающей дополнительную шумоизоляцию внутри квартиры. * Вся мебель и техника на фото может остаться новым владельцам по согласованию. ДОМ -Произведен капитальный ремонт крыши -Произведен капитальный ремонт фасада -В подъезде сделан ремонт: стены оштукатурены декоративной штукатуркой -По периметру дома и в подъездах ведется видеонаблюдение. Дом находится под управлением ТСЖ Костычева, 8 — домом управляют сами жители. На первом этаже расположен опорный пункт полиции. Во дворе: хоккейная коробка. Садик практически во дворе, в 100 метрах. Путь в школу — безопасный. Школа 27 находится в 350 метрах, идти до неё через дворы, не пересекая проезжей части. Никаких нервов по утрам, ребёнок дойдёт сам. Французская гимназия через Монумент в 850 метрах. Музыкальная школа — в соседнем доме, Костычева, 4. В 350 метрах Монумент Славы — огромная зелёная зона в шаговой доступности. Идеально для семейных прогулок, утренних пробежек, велосипедов и самокатов. На салют можно ходить в домашних тапочках) Хорошая транспортная доступность, с пл.Станиславского можно уехать в любую точку города. До станции метро Площадь Маркса можно дойти пешком (примерно 1 км. или 10-15 минут). Это свобода передвижения для всех членов семьи: родителям удобно добираться до работы, ребёнку-подростку — до кружков и секций. Поликлиника в 250 метрах от дома. Бассейн — 150 метров от дома. Юридический статус: 1 взрослый собственник. Без обременений. В собственности более 5 лет. Дополнительно оплачивается комиссия с покупателя. Пожалуйста, дождитесь ответа специалиста при звонке. Время дозвона до владельца объявления увеличено из-за использования подменных номеров на сайте Циан. Объявление не является публичной офертой.
Позвоните автору
Вам ответят на все вопросы

О квартире

Тип жилья

Вторичка

Общая площадь

64,7 м²

Жилая площадь

40,7 м²

Площадь кухни

10 м²

Высота потолков

3 м

Санузел

1 совмещенный

Балкон/лоджия

1 балкон

Вид из окон

На улицу

Ремонт

Евроремонт

Продаётся с мебелью

Да

О доме

Год постройки

1953

Тип дома

Кирпичный

Тип перекрытий

Железобетонные

Подъезды

4

Парковка

Наземная

Отопление

Центральное

Аварийность

Нет

Газоснабжение

Центральное

Юридические особенности

Несовершеннолетние собственники

Нет

Материнский капитал при покупке

Не использовался

Доступная среда

Входная дверь не указана
Двери в ванную и санузел не указаны
Двери в комнаты и кухню не указаны
Спросите умного помощника
Получите экспертное мнение о жилье

Расположение

Ипотечный калькулятор
  • Базовая
  • Семейная
  • ИТ-ипотека
  • 20%
  • 30%
  • 40%
  • 50%
лет
  • 10 лет
  • 20 лет
  • 30 лет
Загружаем предложения от застройщика и банков
Помощь риелтора
Проверенный риелтор поможет купить или продать квартиру
9 500 000 ₽
Цена за метр
146 832 ₽/м²
Условия сделки
альтернатива
Ипотека
возможна
Агентство недвижимости
Документы проверены