Мы используем куки-файлы. Соглашение об использовании
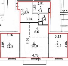
Общая площадь68,5 м²
Жилая площадь25,1 м²
Площадь кухни6,6 м²
Этаж6 из 22
Год постройки2025
В продаже отличная 3х комнатная студия с большой кухней гостинной. Квартира без нюансов а именно: чистая продажа, один взрослый собственник, без обременения и занижений. Показываем по договоренности ключи на руках, звоните!!!
Позвоните автору
Вам ответят на все вопросы

О квартире

Тип жилья

Вторичка

Общая площадь

68,5 м²

Жилая площадь

25,1 м²

Площадь кухни

6,6 м²

Высота потолков

2,7 м

Санузел

1 раздельный

Балкон/лоджия

1 балкон

Вид из окон

На улицу

Ремонт

Без ремонта

Перепланировка

Не было

О доме

Количество лифтов

1 пассажирский, 1 грузовой

Тип дома

Монолитный

Спросите умного помощника
Получите экспертное мнение о жилье

Расположение

Ипотечный калькулятор
  • Базовая
  • Семейная
  • ИТ-ипотека
  • 20%
  • 30%
  • 40%
  • 50%
лет
  • 10 лет
  • 20 лет
  • 30 лет
Загружаем предложения от застройщика и банков
Помощь риелтора
Проверенный риелтор поможет купить или продать квартиру
Автор объявления
ID 100207835
  • Документы проверены
  • 3 года 2 месяца на Циане
  • 8 000 000 ₽
    Цена за метр
    116 788 ₽/м²
    Условия сделки
    свободная продажа
    Ипотека
    возможна
    Автор объявления
    ID 100207835
    Документы проверены