Мы используем куки-файлы. Соглашение об использовании
Общая площадь289,8 м²
Жилая площадь199,3 м²
Площадь кухни30 м²
Этаж2 из 3
Год постройки2017
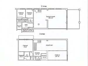
Предлагаем к покупке эксклюзивный объект! Элитная квартира по типу ШАЛЕ - это редкое предложение на рынке недвижимости Новосибирска. Жилье премиум класса в малонаселенной зоне с панорамными видами на реку Обь идеально подойдет для тех, кто мечтает создать родовое гнездо в райском уголке, для тех, кто ценит комфорт, эксклюзивность и гармонию с природой! Панорамные, пейзажные виды открываются с террасы площадью 50 кв.м. и из всех окон квартиры. Просторная квартира в два этажа была создана по индивидуальному проекту. На первом этаже расположены гостевая комната, кабинет, отдельная гардеробная комната, два отдельных хозяйственных помещений и санузел. Сердцем квартиры является большая просторная гостиная 108 кв.м. со вторым светом, которая будет излюбленным местом для встречи гостей, а также для уютных семейных вечеров и праздников. Из гостиной расположен выход на панорамную террасу 50 м2 с потрясающим видом на реку и сосновый бор. Вся мебель изготовлена вручную по индивидуальному заказу из массива ясеня. Кухонная зона 30 кв.м. удобно расположена рядом с гостиной. Полностью укомплектована встроенной итальянской техникой. Кухонный мебельный гарнитур выполнен вручную из немецких фасадов. На втором этаже расположены две мастер-спальни, каждая со своими просторными гардеробными комнатами и санузлами. Высота потолков 3,20 метра. Идеальная планировка для проживания большой и дружной семьи. Каждый сантиметр жилой площади продуман по своему дизайну и функциональности. При отделке были использованы исключительно качественные материалы. Это райский уголок расположен всего в 12 минутах езды от площади Калинина и 16 мин до Красного Проспекта. Очень живописная территория в сосновом бору (здесь живут белки, ежи, дятлы..) будет радовать своим красками в любое время года. В шаговой доступности находится спа-центр "Гринвуд" и ресторан "На даче". Территория комплекса огорожена, въезд через шлагбаум. В этом доме расположены детский сад и школа развития для детей. Под домом находится подземный паркинг, два машиноместа возможно приобрести дополнительно. Приглашаем Вас на просмотр нашего уникального предложения!
Позвоните автору
Вам ответят на все вопросы

О квартире

Тип жилья

Вторичка / Пентхаус

Общая площадь

289,8 м²

Жилая площадь

199,3 м²

Площадь кухни

30 м²

Высота потолков

3,2 м

Санузел

3 раздельных

Балкон/лоджия

1 балкон

Ремонт

Дизайнерский

О доме

Год постройки

2017

Тип перекрытий

Железобетонные

Подъезды

1

Парковка

Подземная

Отопление

Центральное

Аварийность

Нет

Спросите умного помощника
Получите экспертное мнение о жилье

Расположение

Ипотечный калькулятор
  • Базовая
  • Семейная
  • ИТ-ипотека
  • 20%
  • 30%
  • 40%
  • 50%
лет
  • 10 лет
  • 20 лет
  • 30 лет
Загружаем предложения от застройщика и банков
Помощь риелтора
Проверенный риелтор поможет купить или продать квартиру
72 500 000 ₽
Цена за метр
250 173 ₽/м²
Условия сделки
свободная продажа
Ипотека
возможна
Агентство недвижимости
Документы проверены