Мы используем куки-файлы. Соглашение об использовании
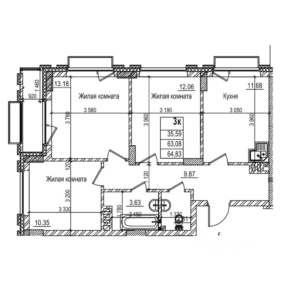
Общая площадь63 м²
Этаж4 из 29
Год сдачи2027
ДомНе сдан
ОтделкаПредчистовая
Продаётся 2-комнатная квартира в строящемся доме (Блок-секция 3.3), срок сдачи: III-кв. 2027, общей площадью 63 кв.м., на 4 этаже. Новый жилой комплекс у берега реки.

О квартире

Тип жилья

Новостройка

Общая площадь

63 м²

Высота потолков

2,8 м

Отделка

Предчистовая

О доме

Количество лифтов

4 грузовых

Тип дома

Монолитно-кирпичный

Пандус

Есть

Понравилась квартира — узнайте о ней больше

Застройщик ответит на все вопросы

Отделка квартиры

Предчистовая — остаётся установить сантехнику, розетки, двери и навести красоту: поклеить обои и уложить на пол покрытие

Варианты отделки в ЖК

  • Предчистовая
  • Чистовая
Похоже на то, что вы ищете?

Акции в ЖК «Чернышевский»

Узнайте про персональные условия и дополнительные скидки при покупке квартиры у застройщика

Материнский капитал

Ипотечный калькулятор
  • Базовая
  • Семейная
  • ИТ-ипотека
  • 20%
  • 30%
  • 40%
  • 50%
лет
  • 10 лет
  • 20 лет
  • 30 лет
Загружаем предложения от застройщика и банков

Расположение

Корпус проверен наш.дом.рф
Обновлено 9 апреля 2026
  • Нет в реестре проблемных объектов
  • Застройщик не банкрот
  • Есть эскроу счёт
  • Неактуальные фото стройки

Ещё квартиры в жилом комплексе

146 квартир в продаже · Сдача в 2026—2027, есть сданные
Агентство недвижимости
SIBWILL
  • Документы проверены
  • 6 лет 4 месяца на Циане
  • 13 580 000 ₽
    Цена за метр
    215 556 ₽/м²
    Условия сделки
    долевое участие (214-ФЗ)
    Агентство недвижимости
    SIBWILL
    Документы проверены