Мы используем куки-файлы. Соглашение об использовании
Только на Циан
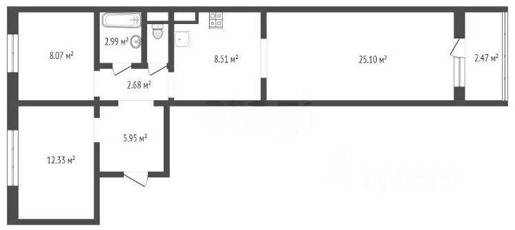
Общая площадь59 м²
Жилая площадь45,5 м²
Площадь кухни8,5 м²
Этаж9 из 10
Год сдачи2027
ДомНе сдан
ОтделкаБез отделки
РЕАЛЬНЫЙ ОБЪЕКТ! Дом 171/3. Сдача весна 2027г. Трехкомнатная квартира-студия в ЖК Плющихинский на девятом этаже. Квартира под самоотделку, Вы получаете чистый лист, готовый к воплощению почти любых дизайнерских задумок, ведь каждый человек — особенный. В районе развитая инфраструктура и хорошая транспортная развязка. Остановка "Цветущая Плющиха" жилмассива Плющихинский. Маршруты автобусов 30, 95, 96, 97, 98, маршрутное такси 14, 24, 44, 44а, 48, 90. В пешей доступности находится супермаркет "Мария-Ра", новая средняя общеобразовательная школа 216, детский сад 100 Капитошка. Звоните сейчас! Приобретение объекта возможно путем вступления в жилищно-строительный кооператив и уплаты взносов (паевой, вступительный и др.).
Позвоните автору
Вам ответят на все вопросы

О квартире

Тип жилья

Новостройка

Общая площадь

59 м²

Жилая площадь

45,5 м²

Площадь кухни

8,5 м²

Санузел

1 раздельный

Балкон/лоджия

1 балкон

Вид из окон

На улицу и двор

О доме

Парковка

Наземная

Расположение

Ипотечный калькулятор
  • Базовая
  • Семейная
  • ИТ-ипотека
  • 20%
  • 30%
  • 40%
  • 50%
лет
  • 10 лет
  • 20 лет
  • 30 лет
Загружаем предложения от застройщика и банков
Помощь риелтора
Проверенный риелтор поможет купить или продать квартиру
3 000 000 ₽
Цена за метр
50 847 ₽/м²
Условия сделки
переуступка
Агентство недвижимости
Документы проверены