Мы используем куки-файлы. Соглашение об использовании
С мебельюТолько на Циан
Общая площадь39,8 м²
Жилая площадь18,4 м²
Площадь кухни11 м²
Этаж7 из 25
Год постройки2017
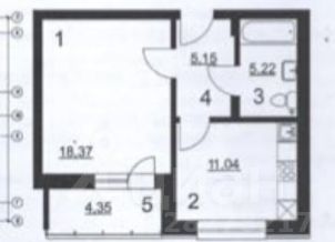
Чистая продажа Продается уютная квартира в современном доме, расположенном в районе метро Студенческая, до которого можно дойти всего за 10 минут пешком. Квартира находится на 7 этаже 25-этажного кирпичного дома 2017 года постройки. Общая площадь квартиры составляет 39,8 кв. м, из которых жилая площадь — 18,37 кв. м, а кухня — 11,04 кв. м. Высота потолков — 2,7 метра, что создает ощущение простора. Квартира с евроремонтом, поэтому вам не придется тратить время и деньги на отделку. В жилом помещении уже есть необходимая мебель и техника, которые позволят вам сразу переехать и наслаждаться комфортом. Планировка продумана до мелочей, а совмещенный санузел выполнен в современном стиле. Из окон открывается вид на улицу, а на лоджии можно наслаждаться свежим воздухом. Дом находится в отличном состоянии, оснащен подземной парковкой, что очень удобно для автовладельцев. В здании функционируют как пассажирский, так и грузовой лифты, поэтому можно легко перемещаться между этажами. Рядом с домом есть все необходимое для комфортной жизни: школы, детские сады, клиники и магазины. Это идеальное место для тех, кто ценит удобство и развитую инфраструктуру. До ближайшего метро можно дойти за 10 минут, что делает поездки по городу быстрыми и удобными. Квартира продается без обременений, возможна покупка в ипотеку. Все юридические документы в порядке, а сделка будет сопровождаться профессиональным агентом, что обеспечит безопасность и прозрачность. Не упустите возможность приобрести эту замечательную квартиру! Записывайтесь на просмотр и убедитесь сами в её достоинствах. Ждем вас!
Позвоните автору
Вам ответят на все вопросы

О квартире

Тип жилья

Вторичка

Общая площадь

39,8 м²

Жилая площадь

18,4 м²

Площадь кухни

11 м²

Высота потолков

2,7 м

Санузел

1 совмещенный

Балкон/лоджия

1 лоджия

Ремонт

Евроремонт

Перепланировка

Не было

Продаётся с мебелью

Да

О доме

Год постройки

2017

Количество лифтов

1 пассажирский, 1 грузовой

Тип дома

Кирпичный

Тип перекрытий

Железобетонные

Подъезды

3

О подъезде

Есть консьерж

Придомовая территория

Шлагбаум, двор без машин

Парковка

Подземная

Отопление

Центральное

Аварийность

Нет

Юридические особенности

Несовершеннолетние собственники

Нет

Материнский капитал при покупке

Не использовался

Доступная среда

Вход в подъезд без порога
Спросите умного помощника
Получите экспертное мнение о жилье

Расположение

Ипотечный калькулятор
  • Базовая
  • Семейная
  • ИТ-ипотека
  • 20%
  • 30%
  • 40%
  • 50%
лет
  • 10 лет
  • 20 лет
  • 30 лет
Загружаем предложения от застройщика и банков
Помощь риелтора
Проверенный риелтор поможет купить или продать квартиру
Автор объявленияТатьяна Ларькина
Суперагент
  • 3 года 2 месяца на Циане
  • 5 объявлений
  • 8 200 000 ₽
    Цена за метр
    206 030 ₽/м²
    Условия сделки
    свободная продажа
    Ипотека
    возможна
    Автор объявленияТатьяна Ларькина
    Суперагент