Мы используем куки-файлы. Соглашение об использовании
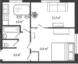
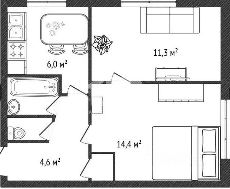
Общая площадь39,6 м²
Жилая площадь25,7 м²
Площадь кухни6 м²
Этаж1 из 5
Год постройки1968
Код объекта: 2090807. Вашему вниманию предлагается отличная двухкомнатная квартира в Новосибирске по адресу Зыряновская улица, 119. Этот объект идеально подойдёт тем, кто ищет комфортное жильё в живописном районе города. Квартира расположена на первом этаже пятиэтажного кирпичного дома, построенного в 1968 году. Окна находятся на уровне второго этажа, т. к есть цокольное помещение. Общая площадь составляет 39,6 кв. м, из которых 25,7 кв. м — жилая площадь. Две изолированные комнаты с окнами, выходящими на улицу, создают уютное пространство для жизни. Ремонт выполнен в евростиле, что придаёт квартире современный вид и позволяет новым владельцам сразу заселиться без дополнительных вложений. Сделан свежий ремонт заменены все коммуникации, электрика, полностью переделан пол заменен на ламинат, стены выравнены, заменены радиаторы отопления, натяжные потолки. Кухня площадью 6 кв. м оснащена всем необходимым для комфортного приготовления пищи. В квартире остается вся мебель. Развитая инфраструктура района, в котором расположена квартира, порадует жителей наличием всего необходимого для комфортной жизни. Школа, детский сад, магазины, остановка транспорта. Рядом есть наземная парковка, где можно оставить автомобиль. Станция метро и железнодорожная платформа Речной вокзал. В шаговой доступности Михайловская набережная на которой проходят все городские праздники. Не упустите шанс стать обладателем этой уютной квартиры! Позвоните нам прямо сейчас, чтобы узнать больше и записаться на просмотр. Мы гарантируем безопасную сделку и юридическую поддержку нашим Клиентам. Поможем одобрить ипотеку с сниженной ставкой.
Позвоните автору
Вам ответят на все вопросы

О квартире

Тип жилья

Вторичка

Общая площадь

39,6 м²

Жилая площадь

25,7 м²

Площадь кухни

6 м²

Санузел

1 раздельный

Вид из окон

На улицу

Ремонт

Евроремонт

О доме

Год постройки

1968

Тип дома

Кирпичный

Тип перекрытий

Железобетонные

Подъезды

6

Парковка

Наземная

Отопление

Центральное

Аварийность

Нет

Спросите умного помощника
Получите экспертное мнение о жилье

Расположение

Ипотечный калькулятор
  • Базовая
  • Семейная
  • ИТ-ипотека
  • 20%
  • 30%
  • 40%
  • 50%
лет
  • 10 лет
  • 20 лет
  • 30 лет
Загружаем предложения от застройщика и банков
Помощь риелтора
Проверенный риелтор поможет купить или продать квартиру
6 200 000 ₽
Цена за метр
156 566 ₽/м²
Условия сделки
альтернатива
Ипотека
возможна
Агентство недвижимости
Документы проверены