Мы используем куки-файлы. Соглашение об использовании
Общая площадь93 м²
Жилая площадь50,5 м²
Площадь кухни15,7 м²
Этаж12 из 19
Год сдачи2026
ДомНе сдан
ОтделкаБез отделки
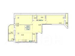
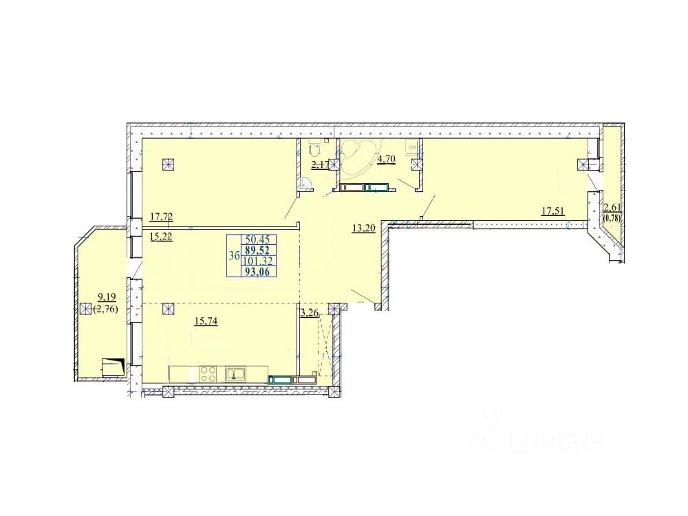
Полноценная 3-комнатная квартира в 14 секции ЖК "Ельцовский". Секция сдана в декабре 2025г, в данный момент активно заселяется! Комфортная планировка на две стороны - окна во двор и на ул.Вавилова, не на магистраль. Кухня 15,74 кв.м.,объединённая с гостиной 15,2 кв.м. (можно поставить перегородку или оставить единым пространством), две спальни 17,72 и 17,51 кв.м., гардеробная 3,26 кв.м., просторная прихожая 13,2 кв.м., два балкона 9,2 и 2,6 кв.м. Квартира под самоотделку - ровная стяжка пола, стены оштукатурены, потолок зашпаклеван, выполнена разводка электрики с установкой розеток и выключателей. Продажа по переуступке, возможно оформление права собственности под покупателя и продажа по ДКП. ЖК "Ельцовский" расположен в центральной части города, в 10 минутах пешком от ст. метро "Заельцовская", прекрасная транспортная развязка. В пешей доступности детский сад, школа, банк, фитнесс-центр, множество магазинов и супермаркетов. Сам ЖК построен по концепции "город в городе" - первые этажи занимают коммерческие помещения, формирующие всю инфраструктуру для максимального комфорта жителей комплекса. Во дворе организованы детские и спортивные площадки. Под территорией двора расположен подземный 4-уровневый паркинг (в продаже машиноместа от 15 кв.м.).
Позвоните автору
Вам ответят на все вопросы

О квартире

Тип жилья

Новостройка

Общая площадь

93 м²

Жилая площадь

50,5 м²

Площадь кухни

15,7 м²

Высота потолков

2,8 м

Санузел

1 раздельный

Балкон/лоджия

2 балкона

Вид из окон

На улицу и двор

О доме

Количество лифтов

1 пассажирский, 1 грузовой

Тип дома

Монолитно-кирпичный

Парковка

Наземная

Расположение

Ипотечный калькулятор
  • Базовая
  • Семейная
  • ИТ-ипотека
  • 20%
  • 30%
  • 40%
  • 50%
лет
  • 10 лет
  • 20 лет
  • 30 лет
Загружаем предложения от застройщика и банков
Помощь риелтора
Проверенный риелтор поможет купить или продать квартиру
Автор объявленияID 110183871
  • Документы проверены
  • 2 года 6 месяцев на Циане
  • 3 объявления
  • 9 750 000 ₽
    Цена за метр
    104 839 ₽/м²
    Условия сделки
    переуступка
    Ипотека
    возможна
    Автор объявленияID 110183871
    Документы проверены