Мы используем куки-файлы. Соглашение об использовании
Только на Циан
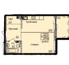
Общая площадь37,02 м²
Жилая площадь13,9 м²
Площадь кухни10,9 м²
Этаж3 из 17
Год постройки2021
Отличное предложение! Светлая, просторная однокомнатная квартира ( евродвушка) с огромной лоджией 7 кв. м. ждёт Вас в ЖК Акация на Ватутина! Уютная кухня-гостиная (10.9 кв.м) с выходом на лоджию, вместительная гардеробная 5 кв.м.,с выведенной мокрой точкой для стиральной машины и с удобными местами для хранения, совмещённый санузел, спальня (13.9 кв.м) - всё выполнено в приятных тонах и ждут своего хозяина! Окна выходят во двор. Всё что на фото остаётся! Заходи и живи свою лучшую жизнь! Чистая продажа! Закрытая территория, двор без машин! Добро пожаловать на просмотр!
Позвоните автору
Вам ответят на все вопросы

О квартире

Тип жилья

Вторичка

Общая площадь

37,02 м²

Жилая площадь

13,9 м²

Площадь кухни

10,9 м²

Высота потолков

2,7 м

Санузел

1 совмещенный

Балкон/лоджия

1 лоджия

Ремонт

Евроремонт

О доме

Год постройки

2021

Количество лифтов

1 пассажирский, 1 грузовой

Тип дома

Монолитный

Тип перекрытий

Железобетонные

Подъезды

1

Парковка

Подземная

Отопление

Центральное

Аварийность

Нет

Спросите умного помощника
Получите экспертное мнение о жилье

Расположение

Ипотечный калькулятор
  • Базовая
  • Семейная
  • ИТ-ипотека
  • 20%
  • 30%
  • 40%
  • 50%
лет
  • 10 лет
  • 20 лет
  • 30 лет
Загружаем предложения от застройщика и банков
Помощь риелтора
Проверенный риелтор поможет купить или продать квартиру
Автор объявленияЯна Агенство
  • 2 года 8 месяцев на Циане
  • 2 объявления
  • 6 100 000 ₽
    Цена за метр
    164 776 ₽/м²
    Условия сделки
    свободная продажа
    Ипотека
    возможна
    Автор объявленияЯна Агенство