Мы используем куки-файлы. Соглашение об использовании
С мебелью
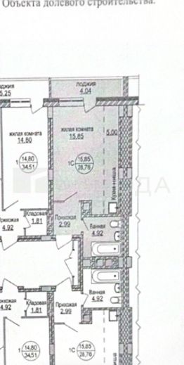
Общая площадь29 м²
Жилая площадь16 м²
Площадь кухни5 м²
Этаж13 из 16
Год постройки2016
Код объекта: 2070417. В продаже квартира-студия в Новосибирске по адресу: улица Мясниковой, 6/3. Это отличный вариант для молодых специалистов, которые ценят комфорт и функциональность. Квартира расположена на 13 этаже 16-этажного кирпичного дома, построенного в 2016 году. Из окон открывается вид на улицу. Общая площадь квартиры составляет 29 кв. м, жилая — 16 кв. м, площадь кухни — 5 кв. м. Есть лоджия. В квартире сделан косметический ремонт, поэтому можно сразу заселиться или при желании сделать ремонт по своему вкусу. Наземная парковка обеспечивает удобное размещение автомобиля. Расположение дома порадует тех, кто ценит комфорт и доступность: развитая инфраструктура района и хорошая транспортная развязка. Мы гарантируем безопасную сделку и юридическую поддержку нашим клиентам. Поможем одобрить ипотеку с сниженной ставкой. Не упустите шанс стать обладателем этой уютной квартиры! Звоните нам прямо сейчас!
Позвоните автору
Вам ответят на все вопросы

О квартире

Тип жилья

Вторичка

Общая площадь

29 м²

Жилая площадь

16 м²

Площадь кухни

5 м²

Санузел

1 совмещенный

Балкон/лоджия

1 лоджия

Вид из окон

На улицу

Ремонт

Косметический

Продаётся с мебелью

Да

О доме

Год постройки

2016

Строительная серия

Индивидуальный проект

Тип дома

Кирпичный

Тип перекрытий

Железобетонные

Подъезды

3

Парковка

Наземная

Отопление

Центральное

Аварийность

Нет

Спросите умного помощника
Получите экспертное мнение о жилье

Расположение

Ипотечный калькулятор
  • Базовая
  • Семейная
  • ИТ-ипотека
  • 20%
  • 30%
  • 40%
  • 50%
лет
  • 10 лет
  • 20 лет
  • 30 лет
Загружаем предложения от застройщика и банков
Помощь риелтора
Проверенный риелтор поможет купить или продать квартиру
3 950 000 ₽
Цена за метр
136 207 ₽/м²
Условия сделки
альтернатива
Ипотека
возможна
Агентство недвижимости
Документы проверены
На Циан
8 лет
Объектов в работе
более 3000