Мы используем куки-файлы. Соглашение об использовании
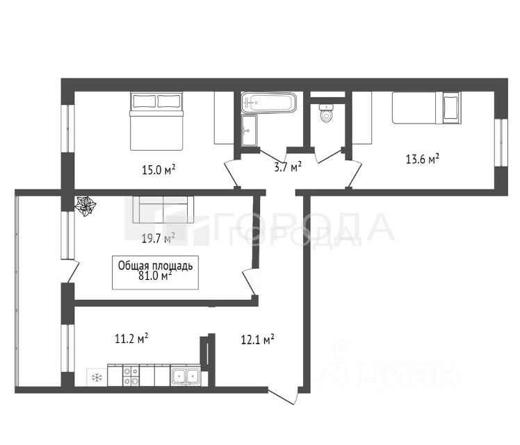
Общая площадь81 м²
Жилая площадь48,3 м²
Площадь кухни11,2 м²
Этаж9 из 18
Год постройки2015
Код объекта: 1383360. Ищете просторную и уютную квартиру в Новосибирске? Воспользуйтесь уникальным предложением: трёхкомнатная квартира в Октябрьском районе, микрорайон Закаменский, по адресу: улица Закаменская, 14! Эта квартира общей площадью 81 кв. м расположена на девятом этаже 18-этажного панельного дома, построенного в 2015 году. Комнаты полностью изолированы, что обеспечивает максимальный комфорт и возможность провести время в спокойной обстановке. Просторная жилая площадь (48,3 кв. м) и кухня (11,2 кв. м) идеально подойдут для семейного проживания или приёмов гостей. Высота потолков 2,75 м создаёт ощущение свободного пространства. Состояние квартиры требует минимальных вложений — выполнена стяжка и штукатурка, что даёт возможность реализовать свои дизайнерские идеи. Окна выходят на 2 стороны - как на улицу, так и во двор, обеспечивая отличный приток света и тихую атмосферу. Развита инфраструктура района: рядом находится вся необходимая социальная и торговая инфраструктура — школы, детские сады, магазины и парки. Транспортная доступность обеспечивается удобными маршрутами, что позволит быстро добраться до центра города и других ключевых точек. Не упустите шанс стать владельцем этой замечательной квартиры! Позвоните нам прямо сейчас, чтобы записаться на просмотр и получить более подробную информацию. Мы гарантируем безопасную сделку и юридическую поддержку нашим Клиентам. Поможем одобрить ипотеку с сниженной ставкой. Дополнительно оплачивается комиссия с покупателя.
Позвоните автору
Вам ответят на все вопросы

О квартире

Тип жилья

Вторичка

Общая площадь

81 м²

Жилая площадь

48,3 м²

Площадь кухни

11,2 м²

Высота потолков

2,75 м

Санузел

1 раздельный

Балкон/лоджия

2 балкона

Вид из окон

На улицу и двор

Ремонт

Без ремонта

О доме

Год постройки

2014

Количество лифтов

1 пассажирский, 1 грузовой

Тип дома

Панельный

Тип перекрытий

Железобетонные

Подъезды

4

Парковка

Наземная

Отопление

Индивидуальный тепловой пункт

Аварийность

Нет

Спросите умного помощника
Получите экспертное мнение о жилье

Расположение

Ипотечный калькулятор
  • Базовая
  • Семейная
  • ИТ-ипотека
  • 20%
  • 30%
  • 40%
  • 50%
лет
  • 10 лет
  • 20 лет
  • 30 лет
Загружаем предложения от застройщика и банков
Помощь риелтора
Проверенный риелтор поможет купить или продать квартиру
9 180 000 ₽
Цена за метр
113 333 ₽/м²
Условия сделки
свободная продажа
Ипотека
возможна
Агентство недвижимости
Документы проверены
На Циан
8 лет
Объектов в работе
более 2000