Мы используем куки-файлы. Соглашение об использовании
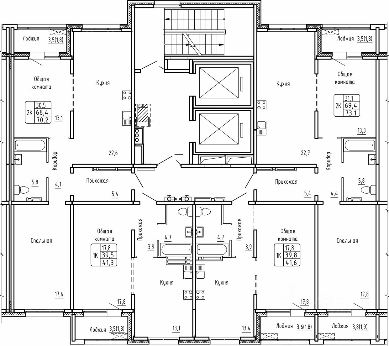
Общая площадь41,3 м²
Этаж14 из 14
Год сдачи2026
ДомНе сдан
ОтделкаБез отделки
Жилой комплекс "Самоцветы" - это объединенная территория закрытых дворов на 11,2 Га. В проект входят 17 жилых домов, школа, детский сад, стоянки открытого типа и многоуровневый гаражный бокс. Жилой комплекс "Самоцветы" — это уникальный подход планирования дворовой территории и концептуально - новое пространство. В ЖК "Самоцветы" запроектированы коммерческие помещения: под кафе, рестораны, супермаркеты, магазины и медицинские центры. Каждая очередь строительства ЖК "Самоцветы" имеет свое уникальное название в честь горных пород России. Жилой комплекс "Самоцветы" расположен по улице "Большая", Ленинского района, города Новосибирска. Вблизи жилого комплекса расположены кафе, продуктовые и строительные магазины, аптеки, а также торговый центр в котором находятся крупный продуктовый магазин, салоны красоты, сервисные центры и др. А в радиусе 2х км расположились тренажерные залы и большое обилие магазинов способных закрыть любые потребности.

О квартире

Тип жилья

Новостройка

Общая площадь

41,3 м²

Высота потолков

2,69 м

Балкон/лоджия

1 лоджия

Отделка

Без отделки

О доме

Количество лифтов

2 грузовых

Тип дома

Монолитный

Пандус

Есть

Понравилась квартира — узнайте о ней больше

Застройщик ответит на все вопросы

Отделка в ЖК

  • Чистовая с мебелью
  • Предчистовая
  • Без отделки
Похоже на то, что вы ищете?

Акции в ЖК «Самоцветы»

Узнайте про персональные условия и дополнительные скидки при покупке квартиры у застройщика
Ипотечный калькулятор
  • Базовая
  • Семейная
  • ИТ-ипотека
  • 20%
  • 30%
  • 40%
  • 50%
лет
  • 10 лет
  • 20 лет
  • 30 лет
Загружаем предложения от застройщика и банков

Расположение

Корпус проверен наш.дом.рф
Обновлено 14 апреля 2026
  • Нет в реестре проблемных объектов
  • Застройщик не банкрот
  • Есть эскроу счёт
  • Актуальные фото стройки

Ещё квартиры в жилом комплексе

340 квартир в продаже · Сдача в 2026—2027
ЗастройщикГК Союз
Год основания: 2005
Строится: 19 домов в 6 ЖК
4 550 000 ₽
Цена за метр
110 169 ₽/м²
Условия сделки
свободная продажа