Мы используем куки-файлы. Соглашение об использовании
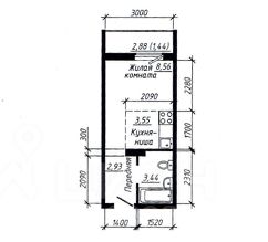
Общая площадь18,2 м²
Жилая площадь8,6 м²
Площадь кухни3,6 м²
Этаж2 из 18
Год постройки2017
Продается уютная студия в современном доме по адресу: Новосибирск, улица Забалуева, 90. Общая площадь квартиры — 18.2 кв. м, расположена на 2-м этаже 18-этажного монолитно-кирпичного дома, построенного в 2017 году. Высота потолков — 2.7 метра. Квартира идеально подойдет как для проживания, так и для сдачи в аренду. В квартире остается вся мебель и техника на фото. Выполнен косметический ремонт, который позволит вам сразу заехать и жить. Санузел совмещенный, все коммуникации в исправном состоянии. Из окон открывается вид во двор, что делает квартиру тихой и спокойной. Также есть балкон для ваших уютных вечеров. Дом находится в отличном состоянии, для вашего удобства оборудован пассажирским и грузовым лифтами, а также пандусом. На территории дома расположена наземная парковка, что решает вопрос с местом для вашего автомобиля. Район с развитой инфраструктурой: в шаговой доступности школы и магазины. До метро "Площадь Маркса" всего 15 минут на автомобиле, что дает возможность быстро добраться до любой точки города. Квартира готова к продаже, документы в полном порядке, без обременений. Один взрослый собственник, квартиру покупали у застройщика. Возможна продажа в ипотеку. Все условия сделки обсуждаются индивидуально, чтобы вы могли сделать покупку максимально комфортной и выгодной для себя. Записывайтесь на просмотр и убедитесь сами в преимуществах этой замечательной квартиры! Мы ждем вас!
Позвоните автору
Вам ответят на все вопросы

О квартире

Тип жилья

Вторичка

Общая площадь

18,2 м²

Жилая площадь

8,6 м²

Площадь кухни

3,6 м²

Высота потолков

2,7 м

Санузел

1 совмещенный

Балкон/лоджия

1 балкон

Вид из окон

Во двор

Ремонт

Косметический

О доме

Год постройки

2017

Количество лифтов

1 пассажирский, 1 грузовой

Тип дома

Монолитно-кирпичный

Тип перекрытий

Железобетонные

Подъезды

4

Парковка

Наземная

Отопление

Центральное

Аварийность

Нет

Спросите умного помощника
Получите экспертное мнение о жилье

Расположение

Ипотечный калькулятор
  • Базовая
  • Семейная
  • ИТ-ипотека
  • 20%
  • 30%
  • 40%
  • 50%
лет
  • 10 лет
  • 20 лет
  • 30 лет
Загружаем предложения от застройщика и банков
Помощь риелтора
Проверенный риелтор поможет купить или продать квартиру
2 700 000 ₽
Цена за метр
148 352 ₽/м²
Условия сделки
альтернатива
Ипотека
возможна
Агентство недвижимости