Мы используем куки-файлы. Соглашение об использовании
Общая площадь87 м²
Жилая площадь59,6 м²
Площадь кухни13 м²
Этаж3 из 10
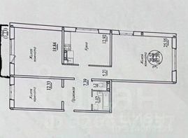
Предлагается к продаже просторная трёхкомнатная квартира в панельном доме на третьем этаже десятиэтажного здания по адресу Плющихинская улица, дом 1. Собственник 1, более 3х лет.Чистая продажа. Обременений нет. Общая площадь жилья составляет 87 квадратных метров, что обеспечивает комфорт для большой семьи или создание персональной планировки под ваши нужды. Жилые комнаты общей площадью почти 60 квадратных метров светлые и уютные. Квартира выполнена с качественным евроремонтом и готова к заселению. Просторная кухня площадью 13 квадратных метров станет центром семейных обедов и дружеских посиделок. Санузел раздельный, что добавляет бытового удобства. Балкон и окна, выходящие во двор на 3 стороны, гарантируют спокойную атмосферу без уличного шума. Дополнительно подается нежилое помещение рядом на этаже, с окном, можно использовать под гардеробную или доппомещение. Отопление центральное городское. Это отличное предложение для тех, кто ищет современное и благоустроенное жильё в Новосибирске. Квартира обладает высоким потенциалом для долгосрочного проживания и является надёжной инвестицией в недвижимость. Торг есть. Мы гарантируем безопасную сделку и юридическую поддержку нашим клиентам. Поможем одобрить ипотеку. Агентство является действующим членом СРО Ассоциации "НОАН". Деятельность Агентства застрахована на 100 000 000 в САО "РЕСО" ГАРАНТИЯ. Дополнительно оплачивается комиссия с покупателя. Комиссии с АН нет.
Позвоните автору
Вам ответят на все вопросы

О квартире

Тип жилья

Вторичка

Общая площадь

87 м²

Жилая площадь

59,6 м²

Площадь кухни

13 м²

Высота потолков

2,7 м

Санузел

1 раздельный

Балкон/лоджия

1 балкон

Ремонт

Евроремонт

О доме

Год постройки

2024

Количество лифтов

1 пассажирский

Тип перекрытий

Нет информации

Отопление

Нет информации

Аварийность

Нет

Спросите умного помощника
Получите экспертное мнение о жилье

Расположение

Ипотечный калькулятор
  • Базовая
  • Семейная
  • ИТ-ипотека
  • 20%
  • 30%
  • 40%
  • 50%
лет
  • 10 лет
  • 20 лет
  • 30 лет
Загружаем предложения от застройщика и банков
Помощь риелтора
Проверенный риелтор поможет купить или продать квартиру
8 000 000 ₽
Цена за метр
91 954 ₽/м²
Условия сделки
свободная продажа
Ипотека
возможна
Агентство недвижимости
Суперагент
На Циан
5 лет
Объектов в работе
45