Мы используем куки-файлы. Соглашение об использовании
Общая площадь58 м²
Жилая площадь40 м²
Площадь кухни9 м²
Этаж2 из 4
Год постройки2025
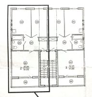
За объект уже внесли аванс Код объекта: 1798717. Продаётся пoлнoцeнная 2-х комнатная квартиpа в экoлогичeски чиcтoм paйoнe гopoдa HОВОCИБИPСКA, расположенная по адресу: 1-я Родниковая улица, 28 с видом на Бургинский мост. Дом расположен на самой высокой точке Новосибирска, рядом с Инюшенским бором. Дом сдан в 2025. Квартира без отделки, общей площадью 58 кв. м, из которых 40 кв. м — жилая площадь. Квартира не угловая, на втором этаже четырёхэтажного блочного дома. Комнаты изолированы, окна выходят на улицу и во двор. Совмещённый санузел. В доме автономное газовое отопление с установленными в каждой квартире индивидуальными двух-кoнтуpными котлами, что обеспечивает эффективное и экономичное отопление круглый год. Особенностью квартиры является наличие большой лоджии, где можно обустроить уютное место для отдыха. Это идеальный выбор для тех, кто ищет комфортное жильё в современном доме с удобной планировкой. Не упустите шанс стать владельцем этой прекрасной квартиры! Чистая продажа. Один взрослый собственник. Обременений , занижений нет. Мы гарантируем безопасную сделку и юридическую поддержку нашим клиентам. Поможем одобрить ипотеку с сниженной ставкой. Организуем показ в любое удобное для Вас время
Позвоните автору
Вам ответят на все вопросы

О квартире

Тип жилья

Вторичка

Общая площадь

58 м²

Жилая площадь

40 м²

Площадь кухни

9 м²

Санузел

1 совмещенный

Вид из окон

На улицу и двор

Ремонт

Без ремонта

О доме

Тип дома

Блочный

Спросите умного помощника
Получите экспертное мнение о жилье

Расположение

Ипотечный калькулятор
  • Базовая
  • Семейная
  • ИТ-ипотека
  • 20%
  • 30%
  • 40%
  • 50%
лет
  • 10 лет
  • 20 лет
  • 30 лет
Загружаем предложения от застройщика и банков
Помощь риелтора
Проверенный риелтор поможет купить или продать квартиру
4 500 000 ₽
Цена за метр
77 586 ₽/м²
Условия сделки
свободная продажа
Ипотека
возможна
Агентство недвижимости
Документы проверены
На Циан
8 лет
Объектов в работе
более 2000