Мы используем куки-файлы. Соглашение об использовании
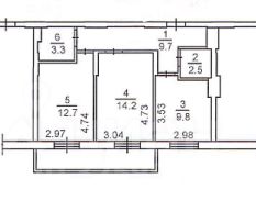
Общая площадь52,2 м²
Площадь кухни9,8 м²
Этаж15 из 25
Год постройки2020
В продаже 2-к квартира в ЖК Дом на Лежена. •изолированная планировка квартиры •52,2 квадратных метра •на выбор - два санузла или один санузел и гардеробная •установлены натяжные потолки и межкомнатные двери •один санузел после ремонта •большая застекленная лоджия на две комнаты •дом кирпичный •шаговая доступность до метро Золотая Нива. Без обременений и притязаний третьих лиц. Сделка нотариальная.
Позвоните автору
Вам ответят на все вопросы

О квартире

Тип жилья

Вторичка

Общая площадь

52,2 м²

Площадь кухни

9,8 м²

Высота потолков

2,7 м

Санузел

1 совмещенный, 1 раздельный

Балкон/лоджия

1 лоджия

Ремонт

Без ремонта

Перепланировка

Не было

О доме

Год постройки

2020

Количество лифтов

3 пассажирских, 1 грузовой

Тип дома

Кирпичный

Тип перекрытий

Железобетонные

Подъезды

1

О подъезде

Есть консьерж

Придомовая территория

Шлагбаум

Парковка

Наземная

Отопление

Центральное

Аварийность

Нет

Юридические особенности

Несовершеннолетние собственники

Есть

Материнский капитал при покупке

Использовался

Доступная среда

Вход в подъезд без порога
Спросите умного помощника
Получите экспертное мнение о жилье

Расположение

Ипотечный калькулятор
  • Базовая
  • Семейная
  • ИТ-ипотека
  • 20%
  • 30%
  • 40%
  • 50%
лет
  • 10 лет
  • 20 лет
  • 30 лет
Загружаем предложения от застройщика и банков
Помощь риелтора
Проверенный риелтор поможет купить или продать квартиру
Автор объявленияРоман Карнюшин
Суперагент
  • 8 лет 3 месяца на Циане
  • 4 объявления
  • 9 500 000 ₽
    Цена за метр
    181 992 ₽/м²
    Условия сделки
    свободная продажа
    Ипотека
    возможна
    Автор объявленияРоман Карнюшин
    Суперагент