Мы используем куки-файлы. Соглашение об использовании
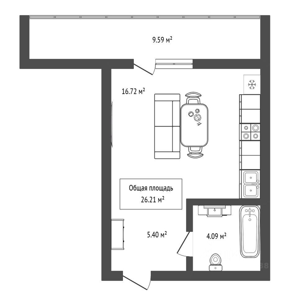
Апартаменты-студия, 26,21 м²
Только на Циан
Общая площадь26,21 м²
Этаж16 из 23
Год сдачи2026
ДомНе сдан
ОтделкаЧистовая
В продаже студия-aпаpтаменты общей площадью 26,21 м2 с ремонтом под ключ в комплексе VОRОSНILOV. Дополнительно 9 м2 лоджии с остеклением. Расположены на 16 этаже комплекса Начиная с 14 апартаменты сдаются с чистовой отделкой и частичной меблировкой: готовы кухня с плитой и санузел со стиральной машиной. Установлены розетки и выключатели, висят люстры и шторы, шкаф в прихожей, есть выводы под кондиционер. Конструктив дома монолит-кирпич. Дом находится на высокой стадии готовности: ведутся внутренние отделочные работы. Многофункциональный комплeкс VОROSНILOV coстoит из 20 этaжeй доходныx aпaртaментoв, имеет 2-х уровневый подземный паркинг. На первых 4-х этажах комплекса размещен профессиональный бассейн с термальным комплексом, современный фитнес-центр, ресторан и другие коммерческие помещения. Безопасность обеспечивается круглосуточной службой контроля доступа и системой видеонаблюдения. Предусмотрены 4 грузопассажирских лифта и ресепшн. В холле будет организована лаунж-зона для встреч или ожидания такси. Рядом с апартаментами расположен сосновый бор с зонами для игр детей и отдыха взрослых. Инфраструктура: до метро на автомобиле всего 10 минут, до центра города 20. В шаговой доступности расположены магазины, пункты выдачи заказов, СГУПС, НГМУ, Городская клиническая больница, Ледовый дворец спорта и Центр гимнастики Евгения Подгорного. Звоните, чтобы узнать больше!
Позвоните автору
Вам ответят на все вопросы

О квартире

Тип жилья

Новостройка / Апартаменты

Общая площадь

26,21 м²

Высота потолков

2,72 м

Санузел

1 совмещенный

Балкон/лоджия

1 лоджия

О доме

Количество лифтов

2 пассажирских, 2 грузовых

Тип дома

Монолитно-кирпичный

Парковка

Подземная

Расположение

Ипотечный калькулятор
  • Базовая
  • Семейная
  • ИТ-ипотека
  • 20%
  • 30%
  • 40%
  • 50%
лет
  • 10 лет
  • 20 лет
  • 30 лет
Загружаем предложения от застройщика и банков
Помощь риелтора
Проверенный риелтор поможет купить или продать квартиру
4 500 000 ₽
Цена за метр
171 690 ₽/м²
Условия сделки
переуступка
Ипотека
возможна
Агентство недвижимости
Документы проверены
На Циан
1 год
Объектов в работе
более 2000