Мы используем куки-файлы. Соглашение об использовании
С мебелью
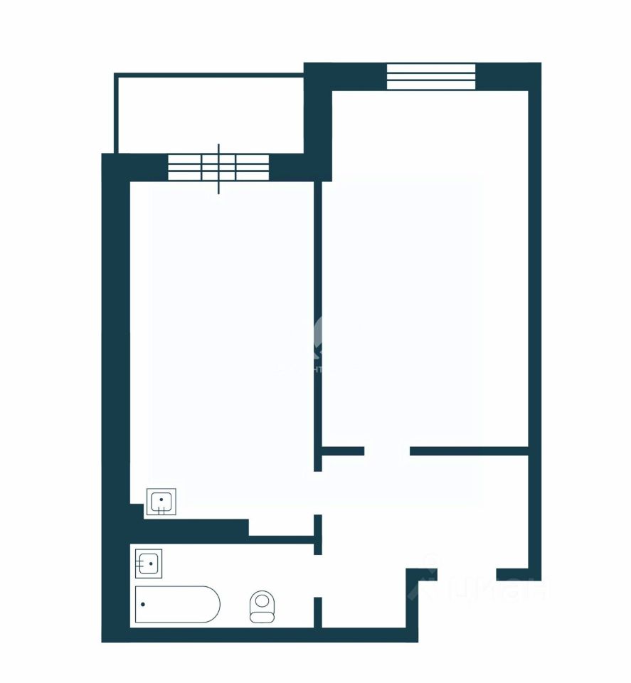
Общая площадь40,6 м²
Жилая площадь20,6 м²
Площадь кухни15 м²
Этаж16 из 20
Год постройки2015
Код объекта: 1966066. Предлагаем к покупке отличную квартиру в ЖК "Марсель". Квартира с качественным современным ремонтом: использованы качественные отделочные материалы, продуманная планировка и комфортная функциональная мебель. Санузел в плитке, полностью оборудован. Кухня — удобная, с рабочей зоной и местом для обеденного стола. Окна выходят на сторону реки, много естественного света. Остается мебель и техника. У данного ЖК своя котельная, у вас не будет перебоев с отоплением и горячей водой, в доме электрические плиты, что дает дополнительную безопасность проживания. Своя управляющая компания. В комплексе расположены магазины, кофейни, детский сад, рядом школа. Есть подземный паркинг и парковка во дворе. Один взрослый собственник. Никто не прописан. Быстрый выход на безопасную сделку. Приглашаем на просмотр этой уникальной квартиры!
Позвоните автору
Вам ответят на все вопросы

О квартире

Тип жилья

Вторичка

Общая площадь

40,6 м²

Жилая площадь

20,6 м²

Площадь кухни

15 м²

Санузел

1 совмещенный

Балкон/лоджия

1 балкон

Вид из окон

На улицу и двор

Ремонт

Евроремонт

Продаётся с мебелью

Да

О доме

Год постройки

2020

Количество лифтов

1 пассажирский, 1 грузовой

Тип дома

Кирпичный

Тип перекрытий

Железобетонные

Подъезды

17

Парковка

Наземная

Отопление

Центральное

Аварийность

Нет

Спросите умного помощника
Получите экспертное мнение о жилье

Расположение

Ипотечный калькулятор
  • Базовая
  • Семейная
  • ІТ-ипотека
  • 20%
  • 30%
  • 40%
  • 50%
лет
  • 10 лет
  • 20 лет
  • 30 лет
Загружаем предложения от застройщика и банков
Помощь риелтора
Проверенный риелтор поможет купить или продать квартиру
7 990 000 ₽
Цена за метр
196 798 ₽/м²
Условия сделки
свободная продажа
Ипотека
возможна
Агентство недвижимости
Документы проверены
Риелтор