Мы используем куки-файлы. Соглашение об использовании
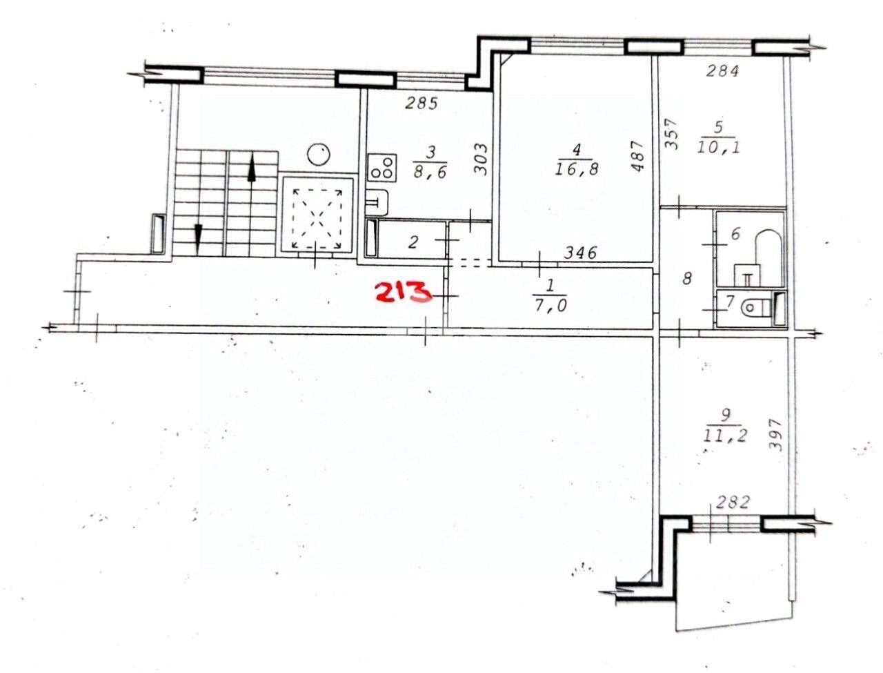
Общая площадь62,2 м²
Площадь кухни8,6 м²
Этаж9 из 9
Код объекта: 1934196. Уникальное предложение для тех, кто ищет доступное жильё в Новосибирске! Продаётся комната площадью 16,8 кв. м в панельном доме 1974 года постройки на улице Макаренко, 7/1. Это отличный вариант для студентов или молодых специалистов, которые ценят комфорт и удобство. Комната находится на 9 этаже 9-этажного дома, окна выходят во двор. Высота потолков — 3 метра, что создаёт ощущение простора. В комнате сделан косметический ремонт, поэтому можно сразу заселиться или при желании обновить интерьер по своему вкусу. Кухня площадью 8,6 кв. м находится в общем пользовании, как и раздельный санузел. В доме есть наземная парковка, а центральное отопление обеспечивает комфорт в холодное время года. Расположение квартиры позволяет быстро добраться до основных транспортных магистралей и важных объектов инфраструктуры. Рядом есть всё необходимое для комфортной жизни: магазины, аптеки, остановки общественного транспорта. Не упустите возможность стать владельцем этой уютной комнаты! Позвоните нам прямо сейчас, чтобы узнать больше и записаться на просмотр. Мы гарантируем безопасную сделку и юридическую поддержку нашим Клиентам!
Это доля в квартиреУточните у автора объявления, как оформлено право собственности и перепланировка, а также какой ремонт — можно ли заезжать и жить
Позвоните автору
Вам ответят на все вопросы

О квартире

Тип жилья

Вторичка

Общая площадь

62,2 м²

Площадь кухни

8,6 м²

Высота потолков

3 м

Размер доли

1/3

Вид из окон

Во двор

Ремонт

Косметический

О доме

Год постройки

1989

Строительная серия

111-90

Количество лифтов

1 пассажирский

Тип дома

Панельный

Тип перекрытий

Железобетонные

Подъезды

6

Парковка

Наземная

Отопление

Центральное

Аварийность

Нет

Расположение

Ипотечный калькулятор
  • Базовая
  • Семейная
  • ИТ-ипотека
  • 20%
  • 30%
  • 40%
  • 50%
лет
  • 10 лет
  • 20 лет
  • 30 лет
Загружаем предложения от застройщика и банков
Зимой будет очень тепло
Дома такой же серии обычно очень хорошо сохраняют тепло
9
Помощь риелтора
Проверенный риелтор поможет купить или продать квартиру
1 195 000 ₽
Цена за метр
71 131 ₽/м²
Условия сделки
свободная продажа
Агентство недвижимости
Документы проверены