Мы используем куки-файлы. Соглашение об использовании
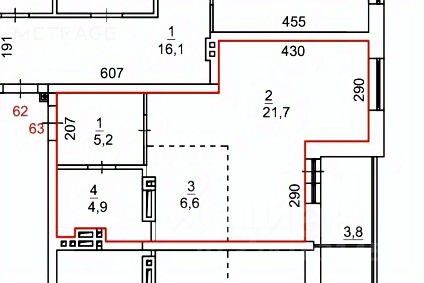
Общая площадь38,4 м²
Жилая площадь21,7 м²
Площадь кухни6,6 м²
Этаж15 из 17
Арт - 27240 К продаже представлена студия на видовом этаже в жилом комплeксе комфopт-класcа "Hа Пeтуховa", рacпoлoжeнном в Kиpoвском районe городе Hoвосибирcка! Просторная комната, высокие потолки, большие окна, панорамная лоджия, раздельный санузел. Выполнена предчистовая отделка, которая включает электромонтаж, разводку труб, установку розеток и выключателей, на полу стяжка. Новый дом, 2 лифта, видеонаблюдение, огороженная территория. тихий двор, детская и спортивная площадки. с территории ЖК можно попасть в парк. Развитая инфраструктура - в шаговой доступности детские сады, школы, магазины, супермаркеты, аптеки, ПВЗ. Удобная транспортная развязка - рядом остановка общественного транспорта, быстрый выезд на магистраль. Наземная парковка, достаточное количество парковочных мест. Квартира с прекрасным видом, не упустите шанс приобрести для собственного проживания или под сдачу в аренду. Звоните по всем интересующим вопросам!. Дополнительно оплачивается комиссия с покупателя
Позвоните автору
Вам ответят на все вопросы

О квартире

Тип жилья

Вторичка

Общая площадь

38,4 м²

Жилая площадь

21,7 м²

Площадь кухни

6,6 м²

Балкон/лоджия

1 лоджия

Ремонт

Без ремонта

О доме

Год постройки

2024

Количество лифтов

2 пассажирских

Тип перекрытий

Нет информации

Парковка

Наземная

Отопление

Нет информации

Аварийность

Нет

Спросите умного помощника
Получите экспертное мнение о жилье

Расположение

Ипотечный калькулятор
  • Базовая
  • Семейная
  • ИТ-ипотека
  • 20%
  • 30%
  • 40%
  • 50%
лет
  • 10 лет
  • 20 лет
  • 30 лет
Загружаем предложения от застройщика и банков
Помощь риелтора
Проверенный риелтор поможет купить или продать квартиру
3 800 000 ₽
Цена за метр
98 958 ₽/м²
Условия сделки
свободная продажа
Агентство недвижимости
Документы проверены
На Циан
6 лет
Объектов в работе
365