Мы используем куки-файлы. Соглашение об использовании
Общая площадь106,7 м²
Жилая площадь60,6 м²
Площадь кухни17,7 м²
Этаж4 из 23
Год постройки2018
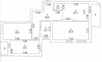
Самая безопасная сделка (эффект Долиной не страшен)! При покупке квартиры использован материнский капитал, у собственников это не единственное жилье, ипотека не погашена. Трёхкомнатная квартира в ЖК "Кларус Парк" под самоотделку. Планировка - очень удачная! Площадь квартиры 106,7 кв.м. + две лоджии: 3,4 кв.м. и 7 кв.м. В этой квартире Вы сможете создать интерьер, который будет актуален для Вас и Вашей семьи. В квартире: - Высокое качество строительства и материалов - Высокие потолки 3 метра - Два сан.узла (один из них с окном) - Две лоджии - Большие окна - Низкие подоконники - Цементно-песчаная стяжка с шумоизоляцией из миниральной плиты - Горизонтальная разводка отопления - Стальные радиаторы Buderus с терморегуляторами - Хорошая стальная дверь (металл 2 мм) Дом комфорт -класса: - Великолепный дизайн МОП - 4 современных лифта SRH (+ 1 спускается на парковку) - Подземный двухуровневый паркинг - Закрытая территория - Видеонаблюдение (27 камер) - Детская площадка расположена на втором уровне дома - УК При желании можно подняться на общий балкон последнего этажа и наслаждаться шикарным видом на город! Развитая инфраструктура: - Школы, детские сады - Медицинские учреждения - Супермаркеты - В минуте ходьбы Зоопарк и Дендропарк - Удобная транспортная развязка - До станции метро "Заельцовская" 18 мин. пешком Звоните! Приглашаем на просмотр! Дополнительно оплачивается комиссия с покупателя. Код пользователя: 52286 Номер в базе: 10283434
Позвоните автору
Вам ответят на все вопросы

О квартире

Тип жилья

Вторичка

Общая площадь

106,7 м²

Жилая площадь

60,6 м²

Площадь кухни

17,7 м²

Высота потолков

3 м

Санузел

1 совмещенный, 2 раздельных

Балкон/лоджия

2 лоджии

Ремонт

Без ремонта

О доме

Год постройки

2018

Количество лифтов

1 пассажирский, 1 грузовой

Тип дома

Кирпичный

Тип перекрытий

Железобетонные

Подъезды

1

Парковка

Подземная

Отопление

Центральное

Аварийность

Нет

Спросите умного помощника
Получите экспертное мнение о жилье

Расположение

Ипотечный калькулятор
  • Базовая
  • Семейная
  • ИТ-ипотека
  • 20%
  • 30%
  • 40%
  • 50%
лет
  • 10 лет
  • 20 лет
  • 30 лет
Загружаем предложения от застройщика и банков
Помощь риелтора
Проверенный риелтор поможет купить или продать квартиру
17 820 000 ₽
Цена за метр
167 010 ₽/м²
Условия сделки
свободная продажа
Агентство недвижимости
Документы проверены
На Циан
1 год
Объектов в работе
более 2000