Мы используем куки-файлы. Соглашение об использовании
С мебелью
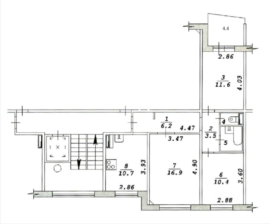
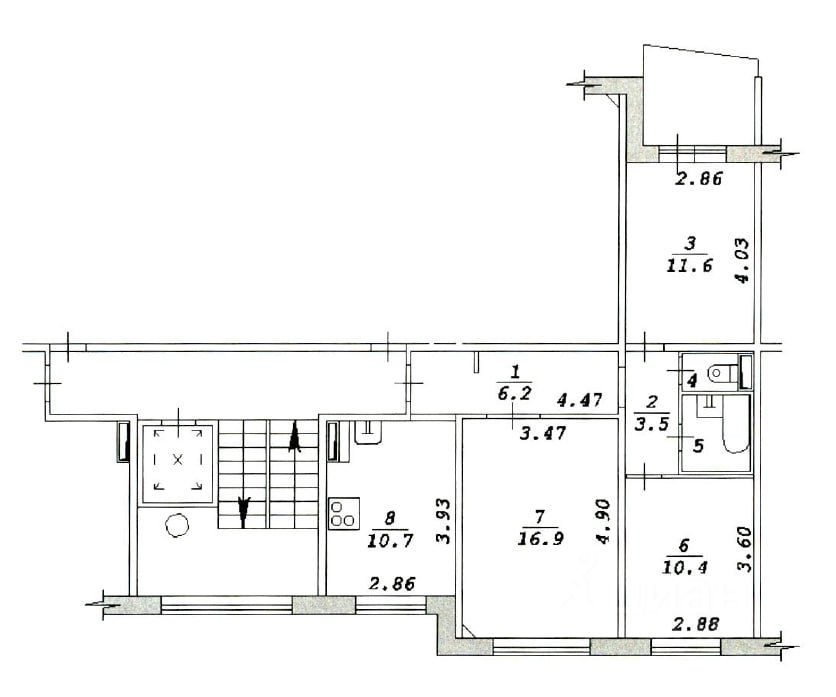
Общая площадь63 м²
Жилая площадь38,9 м²
Площадь кухни10,7 м²
Этаж7 из 9
Год постройки1991
Светлая и теплая 3-комн. квартира с мебелью и ремонтом, готова для проживания. Просторная кухня 10,7 м². Большая лоджия 4,4 м² с видом на лес. Чистые подъезды, видеонаблюдение, благоустроенная территория, парковка у дома. Поликлиника, магазины, тренажерный зал — во дворе. Образовательные, детские, спортивные учреждения рядом. До площади Калинина — 10 минут на автомобиле. Продажа от собственника. Помощь с ипотекой. Готовый дизайн интерьера большой комнаты — В ПОДАРОК новому владельцу! Удобная планировка: Просторная кухня 10,7 м² (узаконенная перепланировка) с удобно организованной электрической разводкой. Светлые изолированные комнаты правильной формы. Большая застекленная лоджия 4,4 м² — подходит для организации рабочего кабинета или зоны отдыха. С лоджии открывается живописный вид на лесную зону и шикарные закаты. Раздельный санузел с вытяжными вентиляторами и водонагревателем. Коридор с возможностью организовать вместительную систему хранения. Состояние квартиры: Ремонт сделан качественными материалами. Полы — керамогранит (кухня, санузлы, прихожая), ламинат (большая комната, спальня и коридор) Потолки — выровнены на кухне и в большой комнате, сделаны натяжные в спальне и подвесные с точечными светильниками в коридоре и сан. узле. Стены — обои под покраску (возможно многократное окрашивание без переклейки). В спальне выполнена звуко- и теплоизоляция. Продуманная система освещения и электроснабжения — проведены линии под дополнительное освещение, технику, интернет и ТВ. Чугунные батареи с возможностью выключения и коммуникации в хорошем состоянии. Лоджия застеклена, обшита вагонкой. В 2024 году проведен ремонт межпанельных швов. В квартиру заведено оптоволокно Дом.ру и Ростелеком. Дом и район: Дом удален от проезжей части — можно открывать окна, не боясь шума и загрязнений. Во дворе — поликлиника, магазины Мария-Ра и Чижик, ПВЗ Ozon и Wildberries, тренажерный зал, детский центр, салоны красоты, оборудованы детская и спортивные площадки. В пешей доступности школы, детские сады, колледж, гипермаркеты Лента, Лемана Про, Большая медведица, spa-комплекс Мира термы, бассейн и спортивные центры. Транспортная доступность: До площади Калинина — 10 минут на автомобиле, 1520 минут на общественном транспорте. Удобный выезд на основные магистрали. Помимо ул. Фадеева есть проезды через частный сектор, район ул. Ляпидевского с выездом на ул. Колонды и Красный проспект. Остановки шести маршрутов общественного транспорта — через два дома. Преимущества: Готова к проживанию — квартира с ремонтом и частично меблирована. Просторная кухня и большая лоджия. Горячая вода в периоды отключений подачи с ТЭЦ. Ухоженный зеленый двор, видеонаблюдение в подъездах, парковка у дома. Дом под управлением ТСЖ. Благоустроенный, спокойный район. Удобство покупки: Быстрый выход на сделку. Подходит под ипотеку любого банка с использованием материнского капитала. Помощь с получением ипотеки.
Позвоните автору
Вам ответят на все вопросы

О квартире

Тип жилья

Вторичка

Общая площадь

63 м²

Жилая площадь

38,9 м²

Площадь кухни

10,7 м²

Высота потолков

2,7 м

Санузел

1 раздельный

Балкон/лоджия

1 лоджия

Ремонт

Евроремонт

Продаётся с мебелью

Да

О доме

Год постройки

1991

Количество лифтов

1 пассажирский

Тип дома

Панельный

Тип перекрытий

Железобетонные

Подъезды

5

Парковка

Наземная

Отопление

Центральное

Аварийность

Нет

Спросите умного помощника
Получите экспертное мнение о жилье

Расположение

Ипотечный калькулятор
  • Базовая
  • Семейная
  • ИТ-ипотека
  • 20%
  • 30%
  • 40%
  • 50%
лет
  • 10 лет
  • 20 лет
  • 30 лет
Загружаем предложения от застройщика и банков
Помощь риелтора
Проверенный риелтор поможет купить или продать квартиру
6 290 000 ₽
Цена за метр
99 841 ₽/м²
Условия сделки
свободная продажа
Ипотека
возможна
Агентство недвижимости
Документы проверены
На Циан
7 лет
Объектов в работе
153