Мы используем куки-файлы. Соглашение об использовании
Только на Циан
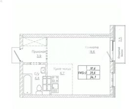
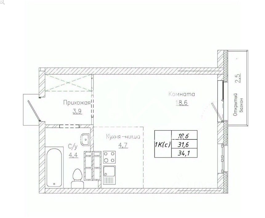
Общая площадь33,9 м²
Жилая площадь18 м²
Площадь кухни5,3 м²
Этаж12 из 22
Год постройки2025
Код объекта: 1170894. В продаже квартира студия в жилом доме комфорт класса "Тихий" . Студия с двумя окнами , можно сделать полноценную однокомнатную квартиру . Шаговая доступность до станций метро Карла Маркса и Студенческая . Развитая инфраструктура : вузы , школы , детские сады , торгово- развлекательные центры , спортивные объекты , парки , предприятия социального значения в шаговой доступности. Компактный, уютный и огороженный двор с детской и спортивной площадками , крытый и подземный паркинг , кладовые . Квартира с отделкой Wite box. Дом сдан, можно заходить на ремонт . Отличный вариант для собственного проживания или сдачи в аренду. Показ в удобное для Вас время! Помощь в получении кредитного решения в банках партнерах!
Позвоните автору
Вам ответят на все вопросы

О квартире

Тип жилья

Вторичка

Общая площадь

33,9 м²

Жилая площадь

18 м²

Площадь кухни

5,3 м²

Санузел

1 совмещенный

Балкон/лоджия

1 балкон

Вид из окон

На улицу

Ремонт

Без ремонта

О доме

Количество лифтов

1 пассажирский, 1 грузовой

Тип дома

Монолитно-кирпичный

Парковка

Подземная

Спросите умного помощника
Получите экспертное мнение о жилье

Расположение

Ипотечный калькулятор
  • Базовая
  • Семейная
  • ИТ-ипотека
  • 20%
  • 30%
  • 40%
  • 50%
лет
  • 10 лет
  • 20 лет
  • 30 лет
Загружаем предложения от застройщика и банков
Помощь риелтора
Проверенный риелтор поможет купить или продать квартиру
4 850 000 ₽
Цена за метр
143 068 ₽/м²
Условия сделки
свободная продажа
Ипотека
возможна
Агентство недвижимости
Документы проверены