Мы используем куки-файлы. Соглашение об использовании
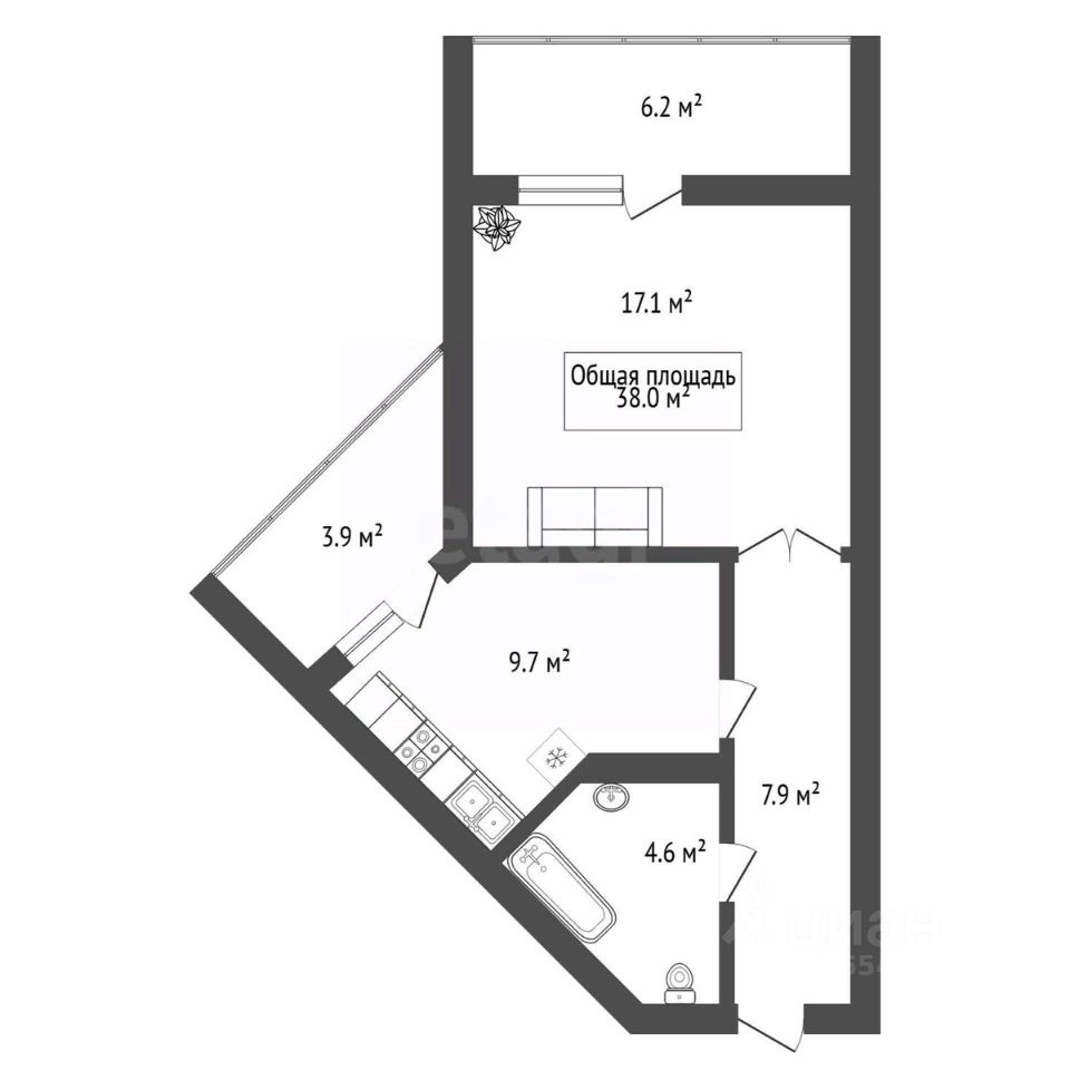
Общая площадь38 м²
Площадь кухни10 м²
Этаж2 из 16
Год постройки2016
Продается просторная 1- комнатная квартира площадью 38,4 кв. м с двумя дополнительными лоджиями 6 и 4 кв. м предлагает редкое сочетание уюта и функциональности. Квартира расположена на солнечной стороне в кирпичном подъезде дома Двоp закрытого типa, в домe ТСЖ. На этаже всего четыре квартиры, что формирует спокойную среду с тихими соседями. Для удобства жильцов в подъезде установлены пассажирский и грузовой лифты. В квартире уже установлен водонагреватель и счетчики на воду и отопление, что позволяет экономить на коммунальных платежах.Обременение в Сбербанке составляет 2 200 000 рублей и будет снято при совершении сделки. Ключевым преимуществом является выгодное расположение: в шаговой доступности находятся детские сады, школы, гимназии, магазины и остановка общественного транспорта с удобной транспортной развязкой до метро. Это предложение представляет собой сбалансированный вариант для тех, кто ценит практичность и развитую инфраструктуру. Приходите на просмотр! Дополнительно оплачивается комиссия с покупателя. Код пользователя: 186269 Номер в базе: 9648654
Позвоните автору
Вам ответят на все вопросы

О квартире

Тип жилья

Вторичка

Общая площадь

38 м²

Площадь кухни

10 м²

Балкон/лоджия

2 лоджии

Ремонт

Евроремонт

О доме

Год постройки

2017

Строительная серия

Индивидуальный проект

Количество лифтов

1 пассажирский, 1 грузовой

Тип дома

Кирпичный

Тип перекрытий

Железобетонные

Подъезды

2

Отопление

Центральное

Аварийность

Нет

Спросите умного помощника
Получите экспертное мнение о жилье

Расположение

Ипотечный калькулятор
  • Базовая
  • Семейная
  • ИТ-ипотека
  • 20%
  • 30%
  • 40%
  • 50%
лет
  • 10 лет
  • 20 лет
  • 30 лет
Загружаем предложения от застройщика и банков
Помощь риелтора
Проверенный риелтор поможет купить или продать квартиру
8 800 000 ₽
Цена за метр
231 579 ₽/м²
Условия сделки
свободная продажа
Агентство недвижимости
Документы проверены
На Циан
1 год
Объектов в работе
более 2000