Мы используем куки-файлы. Соглашение об использовании
Только на Циан
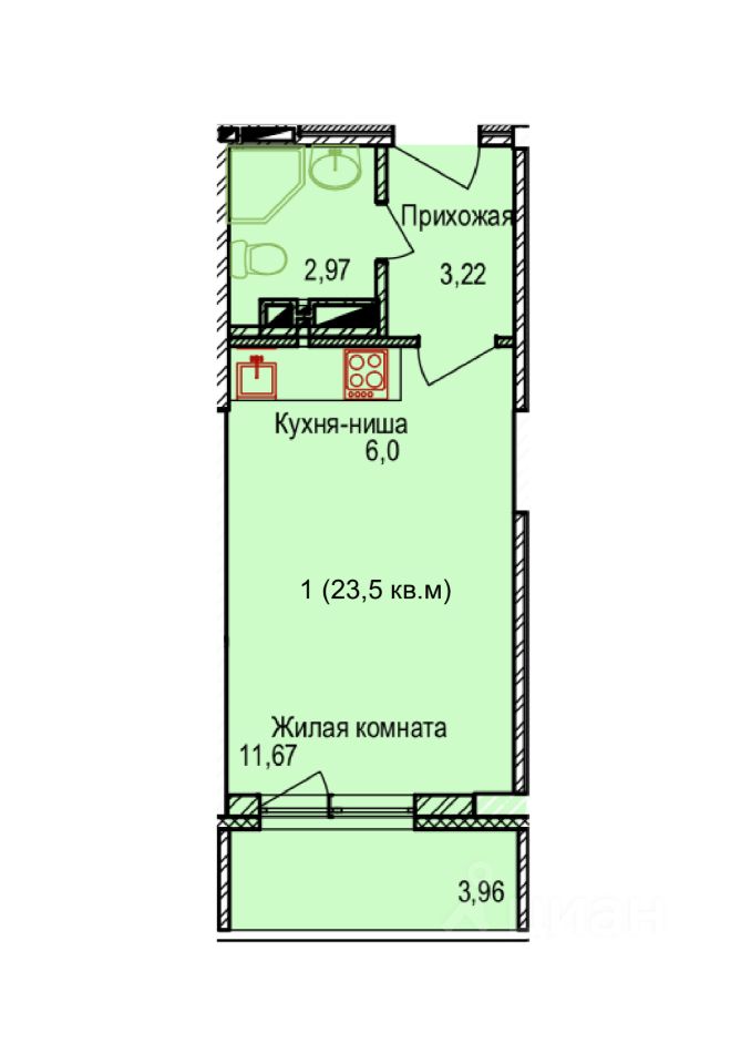
Общая площадь23,5 м²
Этаж14 из 17
Год сдачи2024
ДомСдан
Продаётся 1-комнатная квартира в сданном доме (Пригородная, 30), срок сдачи: I-кв. 2024, общей площадью 23.5 кв.м., на 14 этаже. Жилой комплекс "Золотая роща" расположен рядом с Бугринской рощей, по улице Пригородная в Кировском районе города Новосибирска. Комплекс занимает участок в тихом озелененном районе рядом с ул. Ватутина (остановка Лыжная база). Естественная прохлада от тенистых деревьев и изоляция от городской суеты, позволят ощутить полную гармонию с окружающей природой! Из окон квартир на верхних этажах открывается завораживающий вид на реку, березовую рощу и Бугринский мост. В доме комфорт класса современные скоростные лифты SKY, зеленый двор, детские и спортивные площадки. В квартирах установлены современные окна, произведено витражное остекление балконов, установлены подоконники, радиаторы отопления, счетчики на воду и электричество, выполнена электроразводка с установкой розеток и выключателей, выполнена чистовая стяжка пола, в комнатах выполнена штукатурка стен, а при необходимости застройщик выполнит бюджетный ремонт под ключ и включит его стоимость в ипотеку. Благодаря комплексной застройке на территории ЖК "Золотая роща" предусмотрено достаточно парковочных мест. Тепло в дома жилого комплекса подает собственная котельная, наши жители не зависят от сезонных отключений горячей воды. На территории жилого комплекса работает супермаркет ''Пятерочка'', несколько продуктовых магазинов, автоателье, клуб единоборств, ногтевая студия, стоматологический кабинет, детский досуговый центр, спортивные секции. Поблизости расположены: лыжная база, лазертаг-клуб, пейнтбольный клуб, футбольная площадка, городской пляж, центр зимних видов спорта, конный клуб. В шаговой доступности расположены различные магазины, аптека, пункты выдачи: озон, яндекс, велберис, парикмахерская, салоны красоты и прочие прелести. В 2х остановках от ЖК есть достойный выбор детских садов и школ. За 10 минут можно доехать до станции метро Площадь Маркса, Сан-Сити или ТРЦ МЕГА. Варианты приобретения: 100% оплата, ипотека (Сбербанк, ПСБ, ВТБ, Газпром, Совком, Дом рф.) с господдержкой, семейная, военная ипотека, материнский капитал. Вашим богатством станут чистый воздух и красота березовой рощи!

О квартире

Тип жилья

Новостройка

Общая площадь

23,5 м²

Высота потолков

2,72 м

О доме

Количество лифтов

2 пассажирских, 2 грузовых

Пандус

Есть

Похоже на то, что вы ищете?
Ипотечный калькулятор
  • Базовая
  • Семейная
  • ИТ-ипотека
  • 20%
  • 30%
  • 40%
  • 50%
лет
  • 10 лет
  • 20 лет
  • 30 лет
Загружаем предложения от застройщика и банков

Расположение

Корпус проверен наш.дом.рф
Обновлено 23 февраля 2025
  • Нет в реестре проблемных объектов
  • Застройщик не банкрот

Ещё квартиры в жилом комплексе

9 квартир в продаже · Сдан
Консультант
Циан
  • 5 лет 11 месяцев на Циане
  • 36251 объявление
  • 3 950 000 ₽
    Цена за метр
    168 085 ₽/м²
    Условия сделки
    свободная продажа
    Бесплатно найдём новостройкуИ поможем на сделке
    Консультант
    Циан