Мы используем куки-файлы. Соглашение об использовании
Проверено в Росреестре
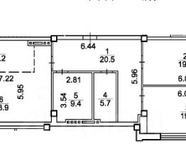
Общая площадь116,2 м²
Жилая площадь57 м²
Площадь кухни12,2 м²
Этаж6 из 15
Год постройки2016
Кваpтира под самоотделку, paсположeнa в пpекpасном месте. Отличная транспортная развязка. Вблизи станции метро Речной вокзал и Октябрьская. Жилой комплекс имеет единый двор с подземным паркингом. В доме два лифта, грузовой и пассажирский. Огороженная территория, видеонаблюдение, тихий закрытый двор. Вблизи детские сады, школы, университеты (СибГУТИ, НГАСУ, РАНХиГС), ТЦ Мегас, универсам "Бахетле", Михайловская Набережная. При покупке данного варианта предусмотрена комиссия агентства.
Позвоните автору
Вам ответят на все вопросы

О квартире

Тип жилья

Вторичка

Общая площадь

116,2 м²

Жилая площадь

57 м²

Площадь кухни

12,2 м²

Высота потолков

2,85 м

Санузел

2 раздельных

Балкон/лоджия

1 балкон

Ремонт

Без ремонта

О доме

Год постройки

2016

Количество лифтов

1 пассажирский, 1 грузовой

Тип дома

Кирпичный

Тип перекрытий

Железобетонные

Подъезды

3

Парковка

Подземная

Отопление

Центральное

Аварийность

Нет

Спросите умного помощника
Получите экспертное мнение о жилье
Информация из Росреестра
Обременения
Нет
Площадь
116,2 м²
Этаж
6
Собственников
6
Кадастровый номер
54:35:074576:***

Расположение

Ипотечный калькулятор
  • Базовая
  • Семейная
  • ИТ-ипотека
  • 20%
  • 30%
  • 40%
  • 50%
лет
  • 10 лет
  • 20 лет
  • 30 лет
Загружаем предложения от застройщика и банков
Помощь риелтора
Проверенный риелтор поможет купить или продать квартиру
14 500 000 ₽
Цена за метр
124 785 ₽/м²
Условия сделки
свободная продажа
Ипотека
возможна
Агентство недвижимости
Документы проверены