Мы используем куки-файлы. Соглашение об использовании
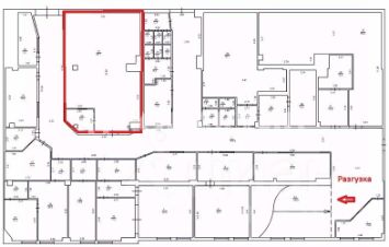
Помещение свободного назначения, 93,1 м²
Площадь93,1 м²
Этаж2 из 7
ПомещениеСвободно
КлассB
Отчёт о привлекательности объектаУзнайте, насколько помещение и район подходят для вашего бизнеса
Что входит в отчёт
  • Охват населения
  • Пешеходный трафик
  • Автомобильный трафик
  • Средний бюджет семьи по району
  • Арендные ставки рядом
  • Точки притяжения
  • Конкуренты в радиусе 1 км
  • Рекомендации по выбору места для бизнеса
Продажа складского помещения 93,1 м. кв. Помещение свободного назначения. Центр города! Эксклюзивное предложение! Преимущества локации: Помещение расположено в центре города на против ТЦ Аура; 10 минут до метро, 3 минуты до автобусной остановки; Развитая инфраструктура; Отличная транспортная развязка; Привлекательность объекта: Свободная планировка; Организованна тёплая зона разгрузки; Описание объекта: Помещение расположено в бизнес-центре; Центральные коммуникации, санузел; Парковка, подъездные пути, охрана, сигнализация; Потенциал объекта: - Для собственных задач; - Торговля; - Образовательные услуги; - Бытовые услуги; - Складские услуги; - Небольшое производство; Коммерческая недвижимость, коммерческое помещение.
lock

Войдите или зарегистрируйтесь
для просмотра информации

Просматривайте условия сделки и всю информацию об объекте
Сохраняйте фильтры в поиске и не вводите заново
Доступ к избранному с любого устройства
Неограниченное добавление в избранное
Позвоните автору
Вам ответят на все вопросы
Остались вопросы по объявлению?
Позвоните владельцу объявления и уточните необходимую информацию.
  • Инфраструктура
  • Похожие рядом
Помощь надёжных риелторов
Риелтор партнёр Циан поможет купить или продать любую недвижимость
14 000 000 ₽
185 364 $
158 582
Цена за метр
150 376 ₽
Налог
НДС включен: 2 524 590 ₽
Агентство недвижимости
Документы проверены
На Циан
3 года
Объектов в работе
229