Мы используем куки-файлы. Соглашение об использовании
Площадь2 150 м²
Этаж1 из 1
Выс. потолков7.0 м.
ПомещениеСвободно
Отчёт о привлекательности объектаУзнайте, насколько помещение и район подходят для вашего бизнеса
Что входит в отчёт
  • Охват населения
  • Пешеходный трафик
  • Автомобильный трафик
  • Средний бюджет семьи по району
  • Арендные ставки рядом
  • Точки притяжения
  • Конкуренты в радиусе 1 км
  • Рекомендации по выбору места для бизнеса
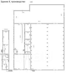
Продам отапливаемое производственно-складское здание, площадью 2150 м² Здание расположено на въезде, возле дороги, подходит под крупное СТО, гараж производство Свободная открытая площадка 1500 м² Год постройки 2012, стены из ЖБИ, перекрытия металлические Пол бетонный, есть смотровая яма Шесть ворот высотой 4,3 метра Площадь земельного участка 3679 м², площадь застройки 2000 м² Доступны электрические мощности до 100 кВт, с возможностью увеличения Центральное отопление, центральное водоснабжение, автономная канализация, в 20 метрах газопровод Здание расположено на огороженной территории производственно-складской базы, но имеет и отдельный выезд. Дороги на территории базы в собственности УК, для невозможности ограничения проезда, возможна установка сервитута. Организована охрана, уборка территории, содержание коммуникаций. Отдельное офисное здание на въезде, столовая Арендная окупаемость с учётом затрат и ежегодной индексацией 7% - 7 лет. Большинство арендаторов на базе снимают помещения дольше 5 лет Возможна ипотека, в том числе для ИП Цена - 107 млн.р./за всё, или 50 т.р./за м², УСН Можем улучшить здание по заданию покупателя, обустроить смотровую яму, увеличить мощность, покрасить и т.д. Для примера: заливка беспылевого пола, покраска изнутри и отделка лицевой стены декоративными панелями, увеличит цену на 3 т.р. за м²
lock

Войдите или зарегистрируйтесь
для просмотра информации

Просматривайте условия сделки и всю информацию об объекте
Сохраняйте фильтры в поиске и не вводите заново
Доступ к избранному с любого устройства
Неограниченное добавление в избранное
Позвоните автору
Вам ответят на все вопросы
Остались вопросы по объявлению?
Позвоните владельцу объявления и уточните необходимую информацию.
  • Инфраструктура
  • Похожие рядом
  • Тип зданияАдминистративное здание
  • Общая площадь2 150 м²
Естественная вентиляция
Центральное отопление
Помощь надёжных риелторов
Риелтор партнёр Циан поможет купить или продать любую недвижимость
107 000 000 ₽
1 422 218 $
1 205 902
Цена за метр
49 768 ₽
Налог
УСН
Агентство недвижимости
Суперагент
На Циан
11 лет
Объектов в работе
121