Мы используем куки-файлы. Соглашение об использовании
Помещение свободного назначения, 194 м²
Площадь194 м²
Этаж-1 из 5
Отчёт о привлекательности объектаУзнайте, насколько помещение и район подходят для вашего бизнеса
Что входит в отчёт
  • Охват населения
  • Пешеходный трафик
  • Автомобильный трафик
  • Средний бюджет семьи по району
  • Арендные ставки рядом
  • Точки притяжения
  • Конкуренты в радиусе 1 км
  • Рекомендации по выбору места для бизнеса
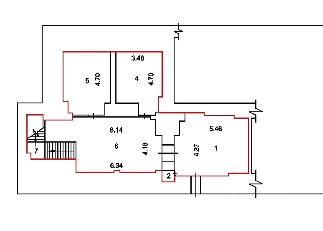
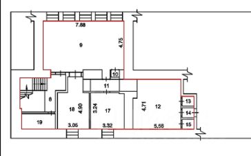
В историческом центре города, в полногабаритном доме, расположенном рядом с метро "Пл. Ленина", за концертным залом им. В. Маяковского, продается офисное помещение, общей площадью 194 кв.м. Нежилое помещение в двух уровнях - цоколь + подвальное помещение с выходом во двор жилого дома.
lock

Войдите или зарегистрируйтесь
для просмотра информации

Просматривайте условия сделки и всю информацию об объекте
Сохраняйте фильтры в поиске и не вводите заново
Доступ к избранному с любого устройства
Неограниченное добавление в избранное
Позвоните автору
Вам ответят на все вопросы
Остались вопросы по объявлению?
Позвоните владельцу объявления и уточните необходимую информацию.
  • Инфраструктура
  • Похожие рядом
  • Общая площадь194 м²
Естественная вентиляция
Центральное отопление
Сигнализация
Помощь надёжных риелторов
Риелтор партнёр Циан поможет купить или продать любую недвижимость
5 900 000 ₽
82 855 $
71 477
Цена за метр
30 413 ₽
Налог
УСН
Агентство недвижимости
Риелтор
Суперагент