Мы используем куки-файлы. Соглашение об использовании
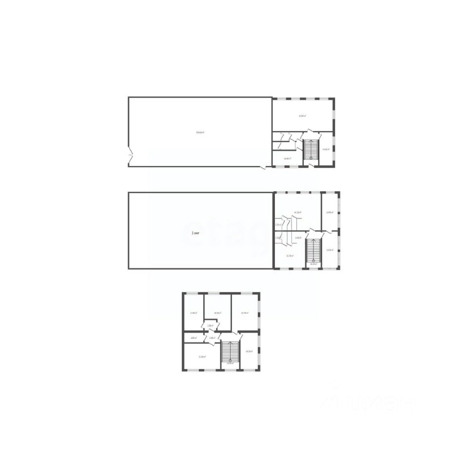
Помещение свободного назначения, 727,4 м²

Продается помещение свободного назначения, 727,4 м²

Площадь727,4 м²
Этаж1 из 3
Отчёт о привлекательности объектаУзнайте, насколько помещение и район подходят для вашего бизнеса
Что входит в отчёт
  • Охват населения
  • Пешеходный трафик
  • Автомобильный трафик
  • Средний бюджет семьи по району
  • Арендные ставки рядом
  • Точки притяжения
  • Конкуренты в радиусе 1 км
  • Рекомендации по выбору места для бизнеса
В продаже производственно-складские помещения - от 728 кв.м. Пpeимущеcтвa лoкации: - В черте города - промышленный узел - Вблизи центральных улиц - Удобные выезды Привлекательность объекта: - Своя территория 35 соток - наличие производственных площадей и офисных - Все коммуникации центральные - 100 кВт эл. энергии, есть возможность увеличения - Своя газовая котельная Описание объекта: - Свободная планировка, наличие 3 этажей - 3 морозильные камеры(20, 20, 360 кв.м.) Потенциал объекта: - Отличная локация для ведения бизнеса - Возможно использовать под различные виды бизнеса - Есть своя закрытая территория с охраной - Есть свободные участки на территории, которые можно использовать для строительства дополнительных площадей или под другие нужды Условия сделки: - Быстрый выход на сделку - Документы готовы - Долгов и обременений нет Приглашаем на просмотр! Дополнительно оплачивается комиссия с покупателя. Код пользователя: 220466 Номер в базе: 9901135
lock

Войдите или зарегистрируйтесь
для просмотра информации

Просматривайте условия сделки и всю информацию об объекте
Сохраняйте фильтры в поиске и не вводите заново
Доступ к избранному с любого устройства
Неограниченное добавление в избранное
Позвоните автору
Вам ответят на все вопросы
Остались вопросы по объявлению?
Позвоните владельцу объявления и уточните необходимую информацию.
  • Инфраструктура
  • Похожие рядом
  • Общая площадь727,4 м²
Помощь надёжных риелторов
Риелтор партнёр Циан поможет купить или продать любую недвижимость
85 000 000 ₽
1 151 952 $
972 773
Цена за метр
116 855 ₽
Налог
НДС не включен
Агентство недвижимости
На Циан
1 год
Объектов в работе
более 2000